欢迎光临聚设汇,装修找设计就上聚设汇!
   咨询电话:15602987227
登录    注册
聚设汇
首页 > 家装 > 灰色20度c

灰色20度c

将入口方向改变,主要希望一回到家可以看见的是窗外的风景, 而不是冷冰冰的墙壁,设计手法上利用铁件的不规则角度排列延续到柜体门片上的皱折,是造型也是把手的一部分 

这个门片的概念很有趣,灵感来自于有一次我柜子门没关好留了一点缝隙, 阳光照射在上面形成很有趣的光影变化,后来我让这个概念延伸到玄关柜上,让这个柜子表情因为不同视角而有不同变化

设计挖了一个有趣的洞口,上面可以放手机或是钥匙,也可以隐约看见后面一部分 

入口玄关侧墙的一整排隐藏门整合

进到房子里第一个印象就是高楼层的大片窗户,所以我们尽可能地将这样的感受保留并且放大

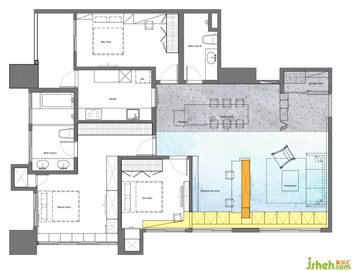
屋主好客喜欢三五好友一起到家里喝酒聊天,所以我们就规画了一个大中岛在视觉中心,可以坐10-12人的尺寸, 客厅与书房利用电视柜做区隔, 窗边卧榻串连这两个空间,但又彼此有独立性。

设计公司

虫点子设计

设计收费:1200-1500 元/平             

擅长类型: 家居,豪宅,别墅

在线咨询

我的作品更多>>

扫描二维码关注我们的微信

深圳市聚设汇文化传媒有限公司
主编热线:15602987227
总部:深圳市罗湖区梨园路128号宝能汽车大楼416单元
佛山、东莞、成都、重庆、福州、厦门、南昌、武汉、
杭州、苏州、温州、郑州、长春、沈阳、贵阳、柳州、
哈尔滨、九江等城市设立办事处
© 2017-2021 Jsheh.com 版权所有 粤ICP备17079093号
展开
回到顶部