



空间区域点状式照明,也将整体⽆聊平叙的空间增加了层次。展厅设计通过双通道进入洽谈茶室和样本区,透过光的指引分布在合适区域,游走的人们可以不由选择合适的区域转动式循环参观。
The point lighting of the space area also adds layers to the boring flat space. Enter the negotiation teahouse and sample area through the double channel, and distribute in the appropriate area under the guidance of light. People who wander can not choose the appropriate area to visit.


探索·定义·延续
EXPLORE, DEFINE AND CONTINUE
空间上新的探索和定义,我们更希望运营者对空间精神的延续。传统是对创新的挑战,⽤传统待客礼仪,让重新探索和定义成为对立面。传统⽂化的延续,新的商业模式的定义。
New exploration and definition of space, we hope operators to continue the spirit of space. Tradition is a challenge to innovation, and with traditional hospitality etiquette, reexploration and definition become the antithesis. Continuation of traditional culture and definition of new business model.


倒立的中空过道在抬高三级之后显然更为耸立了。反之,少即多,简而繁之理念。
The inverted hollow passageway was noticeably more upright after being raised three levels. On the contrary, less is more, the idea of simplicity and complexity.
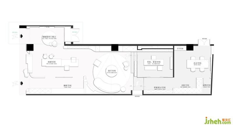
空间布局
SPACE LAYOUT

更多展厅设计请关注