主案设计 / 张志军
Design director / Zhi Jun Zhang
助理设计 /钟立成 彭景松
Assistant design / Li Cheng Zhong Jing Song Peng
项目地址/ 广东 · 惠州 · 中信凯旋城
The project address /Huizhou, Guangdong.CITIC triumph
项目面积 /265 m²
The project area / two hundred and sixty-five m²
项目摄影/ 黄缅贵
Project photography/Mian Gui Huang
项目施工/孔祥艺
Project construction/Xiang Yi Kong
软装/MECA 君悦
Soft fitting/MECA
惠州豪宅设计项目位于广东惠州凯旋城,是一建筑面积为265平米的高层住宅,整个空间以去繁为简的设计语言做表达。记得屋主和我们特别强调要更多的收纳空间,尽可能把物件以不一样的方式收纳,还一个安静舒适优雅的空间。
对于这个空间而言,书架上的书籍带着时间的痕迹和充满回忆的故事,每一本书都记录着屋主对生活的严谨和时间的印记。屋主常常说买书是看缘分,在特定的时期和特定的场景也就多了一本不经意的书,但是它却不经意的能记录了时间,地点和心境等故事 。
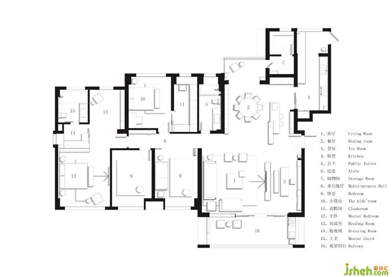
平面布置图▼
Planar Scheme
轴线概念图▼
Axial side concept map
茶室▼
Tea Room
设计一套房子时,我们遵从生活又希望高于生活。
惠州豪宅设计突破传统布局和传统生活方式,打造引领每一个属于他们的生活方式。为进入空间的人掠去心中浮躁,回归真实自我。让空间犹如一首美妙音符,需要听,需要读,需要品,需要用我们走过空间的心境去感受。


惠州豪宅设计延续建筑错落美,打破空间规矩穿插,为空间中的线和面进行合理地编排和呈现,或错落,或穿插,用不同材质的纹路质感和色彩的相互融合对比,增强了空间画面的层次感。


通过对各种形体的安排实现某种秩序,而这种秩序正是一种纯粹的精神创造。形体影响我们的意识,激发我们对造型的热情,物与物的和谐关系在我们中间唤起共鸣,通过这些,我们体会到了美感。

