影厅设计结合结构体块与色彩进行设计,影城设计在满足影音效果需求的基础上,在暗色调之上叠加少量亮橙色与结构,让影厅更具动感与沉浸感。
The design of the cinema combines structural blocks and colours. On the basis of meeting the needs of audio-visual effects, a small amount of bright orange and structure are overlaidon the dark tones to make the cinema more dynamic and immersive.

影厅内部 Inside the Cinema
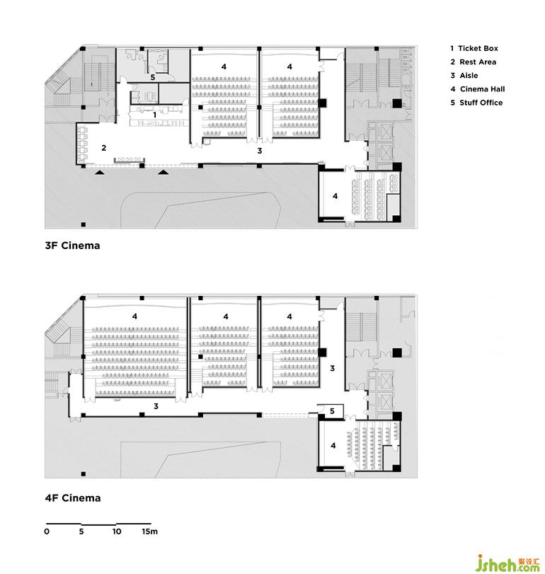
平面图 Plan
更多影城设计请关注聚设汇装修平台: