▼ 自助台隐藏与纵横台阶之间
▼ Self-service desk embedded between staircases

▼ 茶具以传统的陶土为器身,壶盖则以透明亚克力制成,底部台阶状的形式便于固定于墙面。奶茶店设计
▼ Tea pot made from traditional pottery clay and pot lid from transparent acrylic, fixed on the stair-shaped holder along the wall
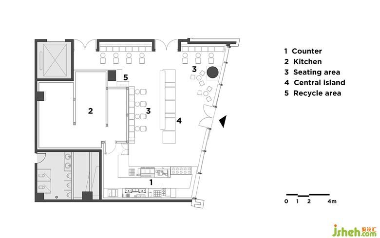
▼ 平面图
▼ Plan