设计公司:华鼎居装饰设计有限公司
主持设计师:许少泽
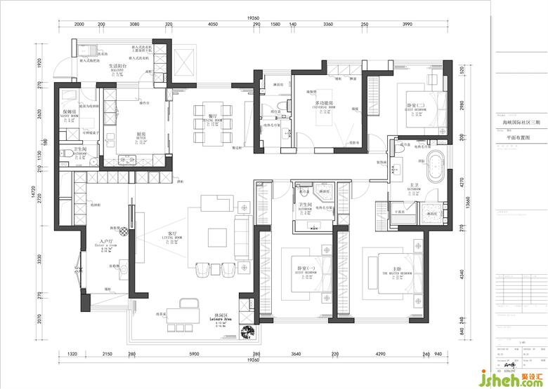
楼盘名称海峡国际
项目所在城市厦门
项目完成日期2021.12.9
项目面积252平方
项目总造价220万
本案的豪宅设计装修风格是意式极简,“低调奢华,静谧优雅”。注重装修质感,简约时尚,设计线条更流畅、更清晰。化繁为简,从简单到极致,追求素净整洁。在功能性与高颜值都得以兼顾的情况下,不哗众取宠,却时时刻刻吸引关注的目光。
客餐厅采用一体化设计,没有设置隔断,减少了空间的压抑感,视觉上也更加通透。多功能房添加了影音设施,为小孩子提供更多共享空间的同时,也能促进大人与孩子的交流、嬉戏,有着更好的互动体验。在设计时推演出最优的空间细分尺度,强调细节的作用和精心挑选的材料,用它们独特的特征定义了整个空间,合理的布局加上适当的摆件给生活足够的仪式感。






更多豪宅设计请关注聚设汇装修平台: