主持设计师:许少泽
设计公司:厦门华鼎居装饰设计有限公司
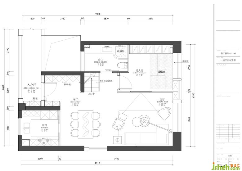
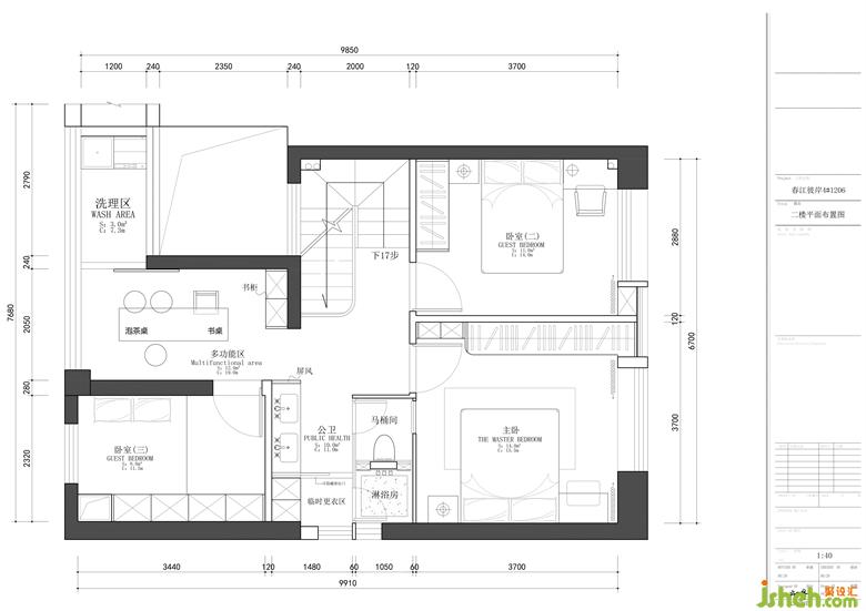
楼盘名称龙湖·春江彼岸
项目所在城市厦门
项目完成日期2021.10.10
项目面积120平方
项目总造价68万
家装设计以留白诠释丰富、将风格让位于舒适,立面赋以白色平铺墙面,玄武黑电视在局部穿插。一层的配置着重点在开放。除卧室、卫生间和厨房之外,运用全开放式设计公共空间,流畅的动线、充足的玻璃窗邀请透亮的光感入室,并采用白色的墙面/柜体分色处理,协调空间整体的比重,延展空间的尺度。空间的硬装软装色彩调和了中度的灰。橙色是欢乐的跳跃,宛如指尖的音符。二楼为卧室、多功能区、洗理区…既有个人空间,又有社交空间。简约大方的多功能区,没有过于复杂的装饰,视觉上更加舒适简单。








更多家装设计请关注聚设汇装修平台: