主持设计师:许少泽
设计公司:厦门华鼎居装饰设计有限公司
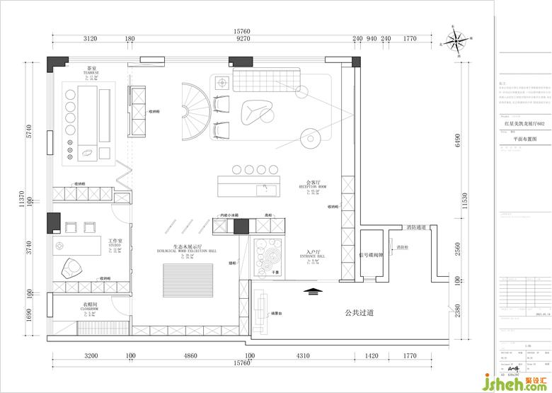
项目名称红星美凯龙展厅设计
项目所在城市厦门
项目完成日期2021.12.7
项目面积135平方
项目总造价80万
展厅是以展柜形式实现的人流、物流、信息流的重要载体。展柜不仅是门面总体装饰的组成部分,而且是展厅的第一展厅,配以合适的灯光、色彩,是企业介绍的综合性艺术形式。
本案的展厅设计理念旨在结合展厅的规划定位创造运动形式感的空间概念,把空间感、立体感、运动感、节奏感的设计表达结合产品展示切入主题定位。为了更好地满足功能需求,依据空间特性,每个区域都承载了各自的主要任务及具体功能。





更多展厅设计请关注聚设汇装修平台: