欢迎光临聚设汇,装修找设计就上聚设汇!
   咨询电话:15602987227
登录    注册
聚设汇
首页 > 家装 > 冷酷绅士

冷酷绅士

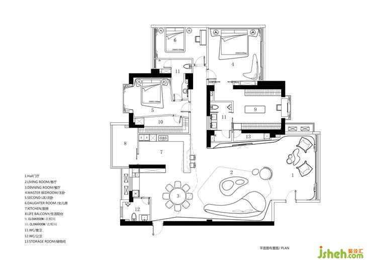
卧室以白为向,弧线与客厅的元素相呼应,和谐统一。白色的天花、墙体、床品搭配黑色木地板,结合灯光设计,营造动静相宜的空间环境。

空间中讲究工艺与细节,天花多面的曲线造型,弧线地面石材与进口手工木地板的结合,镂空的发光墙体无一不是对现代住宅中手工艺人的一种挑战。

现代城市的居住环境中,我们希望打破常态,寻找空间的灵魂,做探究性的设计,我们正在发声。

艺术不应是可望不可及的。在我们的设计里,每一个作品都有属于自己的空间表情。物理环境之外的艺术性与精神性。

AD ARCHITECTURE创始人兼总设计师

设计收费:面议 元/平             

擅长类型: 豪宅、餐厅、办公、会所、公共空间

在线咨询

扫描二维码关注我们的微信

深圳市聚设汇文化传媒有限公司
主编热线:15602987227
总部:深圳市罗湖区梨园路128号宝能汽车大楼416单元
佛山、东莞、成都、重庆、福州、厦门、南昌、武汉、
杭州、苏州、温州、郑州、长春、沈阳、贵阳、柳州、
哈尔滨、九江等城市设立办事处
© 2017-2021 Jsheh.com 版权所有 粤ICP备17079093号
展开
回到顶部