

▼蓝卡区/VIP7


入口处的临时打卡区,更是以基本模块的重叠交错,使其不依靠墙面和天花,独立成型。
The temporary photo area at the entrance is overlapped and staggered by basic modules,which makes it independent of the wall and ceiling.
▼打卡区/Photo Spot

层叠成幻,光炫成谜,这是我们构筑的平行时空酒吧装修设计。
Layers form illusions,dazzling into mystery.This is the parallel space-time we build.
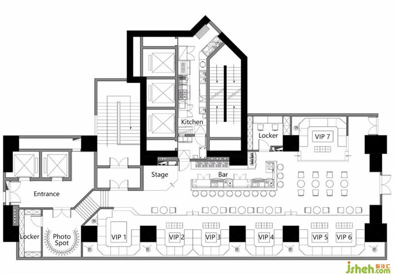
▼设计平面/Plan
更多酒吧装修设计请关注聚设汇装修平台: