要容纳一家四口的家要有多大?显然每个人都能给出不一样的回答。但只要在有限的空间里让每一平米都得到最大化利用,不管是多大的空间,都能满足你对家的需求。
本次介绍的案例是位于北京的四口之家,因为孩子上学需要而在城区市中心购置了一套90㎡的老房子,不算大的空间,方方正正的原始布局,但有着通透的采光让人感觉温暖惬意,今天就一起来看看恒田家设计师如何通过巧手改造后将它设计出彩。
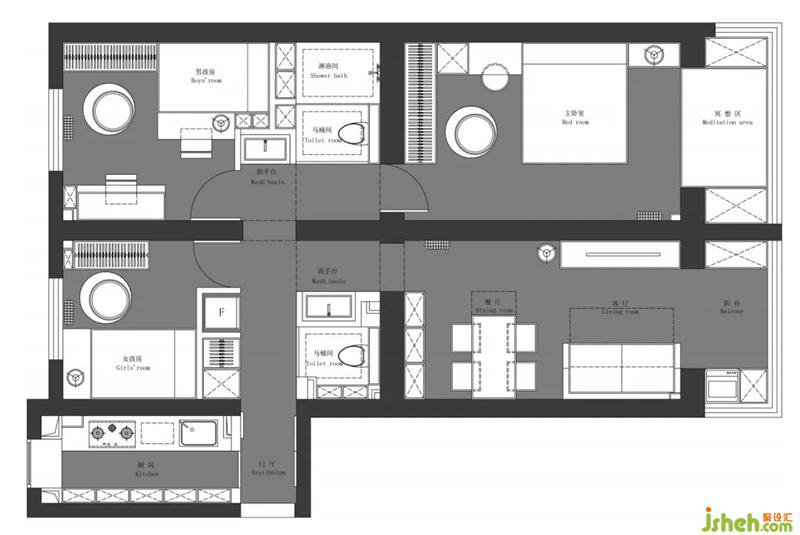
改造前问题:
1、进门过道狭长,过道上方低矮的梁顶造成视觉压抑,玄关缺少储物空间
2、仅有一个卫生间且空间狭小,无法满足一家四口的生活需求
3、客餐厅公共空间较小且与厨房距离较远
4、厨房空间较小,操作不便
改造重点:
1、 客餐厅一体,打通阳台让公共区域更加宽敞通透。
2、将原有卫生间分隔成2个独立马桶间并另设独立淋浴间,做到干湿分离且满足一家四口生活起居需求。
3、保证男女主人独立居住空间的同时,为女主人开辟瑜伽禅修的休闲空间。
改造后户型图
01
打破常规,不如在常规下细致入微
延伸空间,打造开阔玄关
玄关是入户后的第一景,但这个房子原始布局的进门过道略显狭长,上方还有两条低矮的梁顶,给人造成一种视觉压抑。
原始布局的男孩房门正对玄关,考虑到成年后孩子的隐私空间和洗手间布局,恒田家设计师巧妙地利用了部分原来男孩房的空间将其作为淋浴间和洗手间,北京装修设计同时将男孩房的房门改为正对阳台一侧,房门打开时可以和阳台形成室内空气对流,可谓是一举两得。
玄关的储物功能自然也不能少,恒田家设计师借用了女儿房的部分空间做成双面储物柜,方便日常物品收纳,成人与孩子的东西也可以分开储藏,储物柜下方做了悬空设计和隐藏灯带,预留空间方便更换、摆放进出门的鞋履。
迎面可见的墙上壁灯点缀和屋顶的线性灯增强视觉引导,用材质和灯光的对比,让整个空间层高有了巧妙化解,缓解了原先梁顶所造成的空间压抑感,进门后的视野也变得更为开阔和有纵深感。
02
打破常规,不如在常规下细致入微
客餐一-体,打造惬意舒适互动区
受原始空间限制,客餐厅的原始面积较小,恒田家设计师将阳台纳入客餐厅空间,模糊了边界区域,让整个空间视野更加开阔。

阳台的采光非常好,因此选用了透光纱帘引入自然光,提亮了整个空间。摆放的低矮桌椅正好可以在这里享受惬意的下午茶时光,享受被阳光沐浴的感觉。
客餐厅的家具保持一贯的柔和色调,且都以简单轻便为主,一是考虑整体空间并不大,减少压迫感。二是考虑到小朋友日常玩耍或是一家人休闲娱乐时可以将桌椅挪开,更加方便灵活。
木色橱柜、桌椅与木地板形成深浅色对比,色调统一却不缺乏质感。从阳台视角看过去,深浅色调也让整体空间更富有层次感和延伸感。

电视柜选用了黑色亮面材质,与米色皮质沙发,一深一浅碰撞出现代质感。
主卧门做成了与墙面同色的隐形门,这样会使墙面看起来更为流畅简洁。