家就像是一个巨大的器皿,容纳了日剧琐碎和每个人对家的期待及感受。而房子,是家的一种媒介,用四方空间包裹起了生活的欢笑与日常。
一个可以满足每个家庭成员期望的家,即使空间是有限的,也一样可以获得最舒适的居住感受。
本期的展示作品,是一个“规规矩矩”的长条户型,建筑面积约59㎡,一家四口即将要在这里开启全新的生活——长期居家办公的男主人,爱看书、爱运动的女主人,即将成为一名小学生的喜欢画画、古琴的女儿,和工作日照顾孙女起居的外婆。
△户型原始平面及改造后平面对比
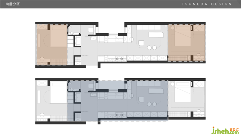
△空间的动静分区示意
在被有限的条件框住的空间里,设计师带着每位家庭成员的期望进行设计改造,充分考虑了三代人的生活及工作特点,很好地解决了原本长条户型采光不好、主卧私密性差及入户玄关空间狭小等硬件问题,同时也满足了每个家庭成员对空间功能的需求。
主卧连接起居空间,同时需要借助南阳台的自然光照明,中间没有墙体遮挡,主卧的隐私性和整个起居空间的采光是设计师需要着重思考和解决的问题。
在卧室和客厅中间,需要一处既能保证采光、又能拥有私密性的隔断。
综合以上考虑,设计师在主卧与客厅中间,设计了一套量身定制的移动书柜。书柜一侧搭配可推拉隔板,这样既可以保证白天的采光最大化,又可以解决夜晚的卧室隐秘性问题。
同时配置了电动雾化玻璃门,开启时会自动雾化,保证主卧的私密性;关闭时便是一扇透明的玻璃门,对白天的光线也不会有任何阻碍。
书柜墙体除了在空间上分隔了主卧与起居室,还为热爱阅读的女主人收藏爱书提供了方便,让200余册书籍,也有了展示收纳之处。
△白天,将书柜的隔板打开,完美利用南阳台的自然光
△夜晚,将书柜的隔板关闭,打开雾化玻璃门,保证主卧的私密性及安全感
主卧内设置了整面墙的衣柜储存空间,再多的衣服也不用担心收纳问题;白色的柜体同时也给空间的明亮感带来了加持北京装修设计。

一处让人心安的卧室环境可以很好地提升睡眠质量。主卧大面积白色、原木色的色彩使用,配合暖光色调的床头灯,温柔、轻松,营造出温馨的卧室氛围感和舒适感。
鉴于户型上的“硬伤”,原本的入户玄关,推开门首先看到的便是卫生间 ,不管是在私密性上还是风水学上都存在一些不足。