项目名称:澳門環世鑽石台北店
设计方:平介设计
项目设计&完成年份:2020
主创及设计团队:董艳,黄迪,肖明峰,杨楠
项目地址:台北忠孝東路3段199號
建筑面积:64m2
摄影版权:龚照竣
合作方:苏州再造设计
客户:澳門環世鑽石
▼临街夜景 Storefront in the night © Zhaojun Gong
项目位于台北市大安区忠孝东路,一条充满烟火气息的商业街中,门店宽仅4.1m进深14m,净层高2.7米。总面积约为64㎡。空间内原为一家诊所,改造为珠宝店后需要满足接待、小型互动展览、仓库、售卖等空间功能。设计师以心型装置创造成为视觉焦点的展陈空间。室内打通原本有墙体,在有限的狭长场地中打造艺术化线性空间。
The project is located in a commercial street full of worldly atmosphere, Zhongxiao East Road, Da'an District, Taipei. The store is 4.1m wide and 14m deep, with the height of only 2.7 meters. The total area is about 64 square meters. The site, which was originally a clinic, should be redesigned to meet the the client need for reception, small interactive exhibition, warehouse, and sale. The designer turned down all the walls in the original space with a heart-shaped installation in the store, as the eye-catching function, creating an artistic narrative linear space in the limited narrow site.
从空间结构、品牌内涵与艺术性三个层面出发。钻石作为该珠宝品牌下的定制产品,店铺装修设计师提取未经过加工的天然矿石切面,在二维形态语言中通过变形与重组形成多面体,从心出发,将爱的具象化符号转换为三维世界中的爱的呈现。不规则的LED透光设计隐喻原石打磨后所呈现的钻石光泽,用视觉上最直接的方式引发路人的好奇,入店一探究竟。坚硬的外形与熠熠的蓝光,诠释环世品牌高级定制的设计理念,传递一份细腻与神秘。
Based on three aspects of the space structure, brand concept and art, the whole design revolves around the love contained in the brand. Diamond, as the custom product of the jewelry brand, is extracted by the designer into unprocessed natural ore slices. The design which origins from the heart, transform the concrete symbol of love into three-dimensional context, the presentation of love in the world, to be exact. The design of irregular LED translucent metaphors the diamond luster after which the rough stone is polished. This light-emitting device is not only functional but also an artistic. The most direct way is aimed to arouse the curiosity of passers-by and find out. The hard shape and shining light interpret the design concept of global brand high-end customization, conveying a delicate and mysterious.
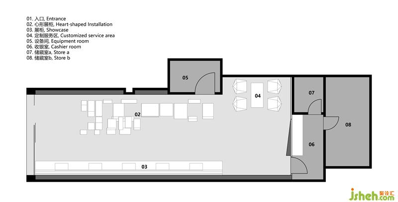
▼平面图 Floor plan
▼店铺外观a Store front a © Zhaojun Gong
店铺装修设计全店以灰色与蓝色创造平衡,耕植品牌本身的形象,蕴酿出钻石背后,关于爱的多面情感。
The whole store in gray and blue creates a balance, cultivates the image of the brand itself, and brew the mufti-facet emotion of love behind the diamond.
中心的蓝色爱心装置是空间中匠心的开始,以银色拉丝不锈钢材质作为包裹,不规则的造型组合成心的形状,并随着体验者位置与视角的移动,产生不同空间画面。在不同空间层次的形态语言中,蓝色爱心在纯净的银色空间基调中愈发夺目,隐约之间折射光芒;线性灯带延伸空间,使视觉界面无限蔓延;用一颗浮夸的心形语言点亮整个灰空间,以定格的即将爆炸的心形表现动感,配以深色的家具陈列细节,让空间聚焦于中央心形装置,每个展柜都等待着顾客采撷其最动人的一面。
A blue heart-shaped installation in the center of the sight is the beginning of the ingenuity in the space. The low-key luminous block is wrapped in silver brushed stainless steel. With the movement of the position and perspective of the customers, different perspectives of images are generated. In the morphological language of different spatial levels, the blue heart becomes more eye-catching in the pure silver tone, faintly refracting light; the linear light strip extends the space, allowing the visual interface to spread infinitely; the use of an exaggerated heart-shaped installation brighten the entire gray space, expressing the dynamics with the frozen heart shape about to explode; with dark furniture displaying details, it allows the customers to focus on the central heart-shaped design. Each showcase is waiting for customers to pick up its most moving side.
▼心形展柜动态图 Heart-shaped showcase dynamic drawing
▼心形展柜 Heart-shaped Installation © Zhaojun Gong
发光的蓝紫色呼应品牌原本视觉形象,唤起消费者的购买欲。
The luminous blue and purple elements are aimed to response the original visual image of the brand and arouse consumers' desire to buy.
▼店面b Storefront b © Zhaojun Gong
▼充满折射与反射的展示空间 Exhibition space full of refraction © Zhaojun Gong
镜面与不锈钢材质的包裹,延伸的展柜,让顾客穿行其中,店铺装修设计沿狭长空间的行走动线设计出现面向不同角度的独立展柜,在光线的各种反射之下,步移景异。
The mirror and stainless steel material allows everyone to feel the love that belongs to him and her in the diamond. Through the extended display cabinets, when customers walk through the space, independent display cabinets facing different angles are designed along the walking motion line of the narrow space. Under the various reflections of light, the scenery changes step by step.
▼拔地而起的蓝色装置柜成为纯灰空间中的亮点 The blue installations rising from the ground become the bright spot in the pure gray space © Zhaojun Gong
▼售卖与展示结合的空间 the space with the function of selling and exhibiting © Zhaojun Gong
折线形钻石展柜以其密集的平行线造型强化了空间进深感,店铺装修设计与心型展柜一同反射于一侧的镜面墙中,一定程度上丰富了视觉层次的同时使空间整体显得不至于过多狭长局促。
On one side is the heart-shaped display area, and on the other is the diamond display area. Both is integrated in the connection of mirror materials. The story of love is born in this world.
▼新型装置的碎片作为产品展柜a Flexible heart-shaped installation a © Zhaojun Gong
部分单体作为首饰展示功能,展现该品牌的收藏及概念产品,另一些展柜内可不停更换当季新品。展柜的内凹壁龛空间依然是拉丝不锈钢,结合温暖的天鹅绒衬布,呼应品牌高级定制的产品定位。
Some monomers are used as jewelry display functions to show the brand's permanent collection, and others can be constantly replaced with new products of every season, leaving space with unlimited possibilities. The recessed niche space of the showcase is still brushed stainless steel, combined with the warm velvet underside as the jewelry background, commensurate with the overall tailor atmosphere.
▼视觉效果呈现随视角变化而不同 Flexible viewing angles in different height © Zhaojun Gong
