项目名称: 欧思兰化妆品展厅设计
建筑事务所/公司/机构/单位: 平介设计
项目完成年份:2024
建筑面积:400㎡
项目地址: 中国浙江省湖州市吴兴区湖州欧思兰化妆品有限公司
摄影版权: 徐英达
设计团队: 李筱葳,杨楠,常博文
委托方:湖州欧思兰化妆品有限公司
感官在《汉典》中被解释为感受外界事物刺激的感觉器官。亚里士多德将人体的感官分为五种,即触觉、嗅觉、味觉、听觉和视觉。在《设计中的设计》一书中,日本著名建筑设计师原研哉将感官体验理论及其应用进行了相应的阐释,并提出“了解人的感觉及感受形式,然后利用设计让受众得到并了解讯息,是二十一世纪设计发展的新方向”。
In the Handian, it is interpreted as a sensory organ that feels the stimulation of external things. Aristotle divided the body's senses into five: touch, smell, taste, hearing and sight.In the book "Design in Design", the famous Japanese architect Kenya Hara explained the theory of sensory experience and its application accordingly, and proposed that "understanding people's feelings and feeling forms, and then using design to let the audience get and understand the information, is a new direction of design development in the 21st century".
▼ 项目概览,Project overview ©徐英达
湖州欧思兰企业展示空间位于中国浙江省湖州市吴兴区—湖州欧思兰化妆品有限公司。该项目突破传统的以视觉和和听觉为中心的设计手段,转向了以多感官协调共同发展的体验式设计。从多方位、多角度地去刺激人的感官系统,给人带来身临其境的感官体验,更精准地向人诠释和传递信息以及情感。将该设计策略结合场地现状,并运用科技和一定的美学艺术,使企业形象、文化和产品得到一定的影响力传播。
Huzhou Ousilan enterprise exhibition space is located in Wuxing District, Huzhou City, Zhejiang Province, China - Huzhou Ousilan Cosmetics Co., LTD. The project breaks through the traditional visual and auditory design methods, and turns to the multi-sensory coordination and common development of experiential design. To stimulate people's sensory system from multiple directions and angles, bring people immersive sensory experience, and more accurately interpret and transmit information and emotions to people. The design strategy combined with the current situation of the site, and the use of technology and certain aesthetic arts, so that the corporate image, culture and products get a certain influence to spread.
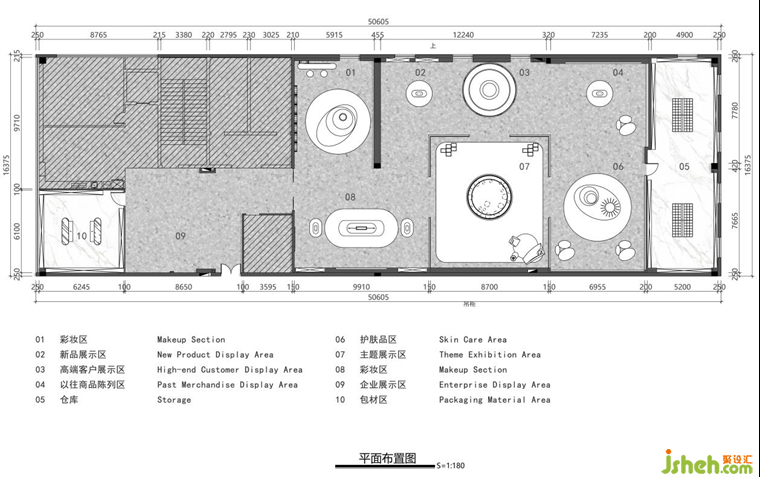
▼ 平面布局及人流动线,Floor plan and people flow line©平介设计
将整个展示空间按照四大部分功能进行切块,分别为包材区、企业文化展示区、展厅以及仓库。展示空间的整体方向围绕感官体验以及欧美元素的融入而展开,利用装置造型、材质、商品陈列、智能数字化屏幕影像、背景音乐等,展示和传递着本季度业务向欧美国家拓展的信息。展厅依据感官的分类并结合所需陈列的商品价值、功能、研发、合作方、季度主题等划分为七个功能区,分别为彩妆区、新品展示区、高端客户展示区、以往商品陈列区、护肤品区以及主题展示区。展厅空间皆采用圆形或弧形的装置,弱化了规矩且带有棱角的长方形空间,并结合对角线的方式进行大小有序的排列布局。
The whole display space is segmented according to four major functions, namely the packaging material area, the corporate culture exhibition area, the exhibition hall and the warehouse. The overall direction of the exhibition space revolves around sensory experience and the integration of European and American elements, using installation modeling, materials, product displays, intelligent digital screen images, background music, etc., to display and convey the information of business expansion to Europe and America in this quarter. The exhibition hall is divided into seven functional areas according to sensory classification and combined with the value, function, research and development, partners and quarterly themes of the products required to be displayed, which are respectively color makeup area, new products exhibition area, high-end customer exhibition area, past products exhibition area, skin care area and theme exhibition area. The exhibition space adopts circular or curved devices, which weakens the regular rectangular space with edges and corners, and combines with the diagonal way to arrange and layout the size and order.
对于空间中的人流动线,本次设计注重以人流动线与空间之间相互作用的一种秩序感,以及穿插着自由的动线类型,避免了人群堆积的问题又能使参观者发挥自我意识与展品进行互动,更好的挖掘出空间中潜在意思。在整体空间的流线设计上则采用单一的串联式布局,按照线性顺序组合排列且非常明晰,简化不必要的干扰元素,从文化宣传—材质—产品的一种模式,使参观者的游览路线将展示与体验交叉进行,并随着游览路线的一步步推进和空间呈现内容的变化,除视觉和体验以外的其它感官也得到逐渐增加,参观者在展示空间内的情绪也逐渐发生变化。此外,在感官体验下的展示空间设计实践中,展厅则作为展示空间的重要节点,其客源数量相比于其它功能区域也较为聚集。
As for the human flow line in the space, the design focuses on a sense of order in the interaction between the human flow line and the space, as well as the type of free moving line interspersed, avoiding the problem of crowd accumulation and enabling visitors to exert self-awareness and interact with the exhibits, so as to better explore the potential meaning in the space. In the streamline design of the overall space, a single serial layout is adopted, which is arranged in a linear order and is very clear, simplifying unnecessary interfering elements. From a mode of cultural publicity - material - product, visitors' tour route will cross the display and experience, and with the step by step advancement of the tour route and the change of the content of the space presentation, In addition to vision and experience, other senses have gradually increased, and the emotions of visitors in the exhibition space have gradually changed. In addition, in the display space design practice under sensory experience, the exhibition hall is an important node of the display space, and the number of visitors is more concentrated compared with other functional areas.

▼ 展厅空间,Exhibition space ©徐英达
在展厅空间设计上围绕本季度业务向欧美国家拓展的信息以及以芭比元素为主题进行展开,展厅设计以当代的手法进行演绎来彰显具有品牌特性的企业展示空间。将观赏、交互、产品体验加入到展厅空间中,并使用不同的材料进行叠加,形成截然不同的质感来寻求材料性上的对比。高贵的金色、端庄的白色、妩媚的粉色,以及时尚界经典的黑色,无不逐一的散发着女性的魅力。
In the exhibition hall space design, the information about the expansion of business to Europe and the United States in this quarter and the Barbie element as the theme are carried out, and the contemporary method is interpreted to highlight the enterprise display space with brand characteristics. Viewing, interaction, and product experience are added to the exhibition space, and different materials are superimposed to form completely different textures to seek for material contrast. Noble gold, dignified white, charming pink, and the classic black of the fashion world, all exude the charm of women.
▼ 视觉体验,Visual experience ©徐英达
通过人造光和自然光的折射使参观者的视觉系统开始运作,并结合空间中的点、线、面、色彩等这些基础要素的组合,对空间形成一个立体意识。
Through the refraction of artificial light and natural light, the visitors' visual system begins to operate, and the combination of points, lines, surfaces, colors and other basic elements in the space forms a three-dimensional consciousness of the space.
展厅空间中除了运用仿照西式风格的拱门形态墙体作为区域之间的隔断外,还通过装置将空间进行划分,引导参观者在空间中的动线走势。
In addition to the use of Western-style arch shape wall as a partition between areas, the exhibition space is also divided through the installation to guide the movement of visitors in the space.
彩妆区在造型元素上借鉴了欧洲女性的层叠式裙装以及克利诺林裙撑的形式,并以大大小小的圆和椭圆的形式进行穿插、叠加进行体现,具有支撑作用的立柱采用LED灯镶嵌的手法,并结合飘带的形式层层旋转并缠绕在立柱上的玻璃展示架上,以此来弱化支柱的力量感和存在感。
In terms of modeling elements, the makeup area draws on European women's layered dresses and the form of Klinolin skirt, and is interspersed and superimposed in the form of large and small circles and ovals. The supporting columns are inlaid with LED lights, and the form of ribbons is rotated layer by layer and wrapped around the glass display rack on the columns. To weaken the strength and presence of the pillar.

新品展示区与以往商品陈列区的装置,两者以高端商品展示区的装置为中轴线,对称且造型一致铺设开来。两个区域的展示台采用重心向下的方式,与高端商品展示区呈重力向上的装置区分开来,并且两个区域使用圆形吊灯的方式以此达到三者视觉上的高度统一。以往商品陈列区的墙面安装大面积的数字屏幕,其目的不仅是为了陈列出产品的更新迭代,还为了展现各大品牌的企业合作方,以此达到一种该品牌的业界认可度与知名度。
The device of the new product display area and the previous product display area take the device of the high-end product display area as the central axis, symmetrical and consistent in shape. The display stands in the two areas use a downward center of gravity, which is distinguished from the high-end product display area with a gravity upward device, and the two areas use a circular chandelier to achieve a high degree of visual unity of the three. In the past, a large area of digital screen was installed on the wall of the commodity display area, whose purpose was not only to display the update and iteration of the product, but also to show the enterprise partners of the major brands, so as to achieve the industry recognition and popularity of the brand.