展示墙 ©朱润资
Exhibition Wall ©Zhu Runzi
展柜细节
Detail of the showcase
展柜创新地将艺术展示和零售两种功能融合在一起,珠宝店铺设计展现了品牌特色并具有艺术性。饰品在深灰色盒子的映衬下如同宝石般发出耀眼夺目的光。
The showcases creatively integrate art exhibition and retail, revealing the brand’s characteristics and artistry. The accessories glow like gems against the dark gray box.
墙面展柜 ©林圭佳栋
Display Box © Lin Guijiadong
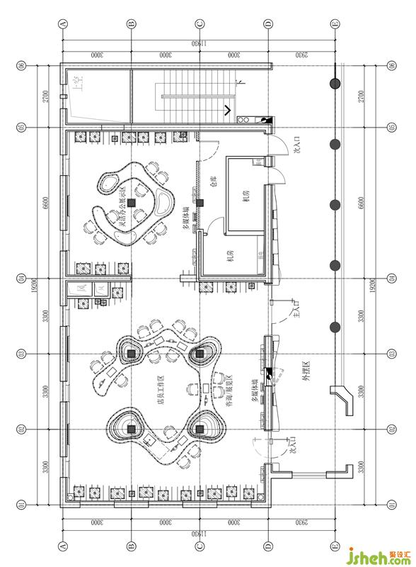
平面布置图©平介设计
Plan © Parallect Design
轴侧图©平介设计
Axonometric © Parallect Design
外立面图©平介设计
Elevation © Parallect Design
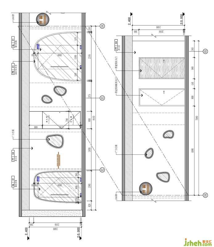
室内立面图©平介设计
Elevation © Parallect Design

门头大样图©平介设计
Detail © Parallect Design
更多珠宝店铺设计请关注聚设汇装修平台: