项目信息
项目地址 / 深圳 罗湖 粤海城家装设计
Address / luohu shenzhen
项目面积 / 140㎡
Project area / 140㎡
设计机构 / 时光筑造空间设计
Design Organization / SGZZ interior design
这是一套清爽会呼吸的浅色调案例,家装设计整体风格就如同女业主给人的感受一般,干练大气,说话柔软温柔,于是我们整体的调性就定在这种比较明快清爽的色系,加了一丝奶油韵味,更加温馨柔和。
—
户型解析
Design analysis
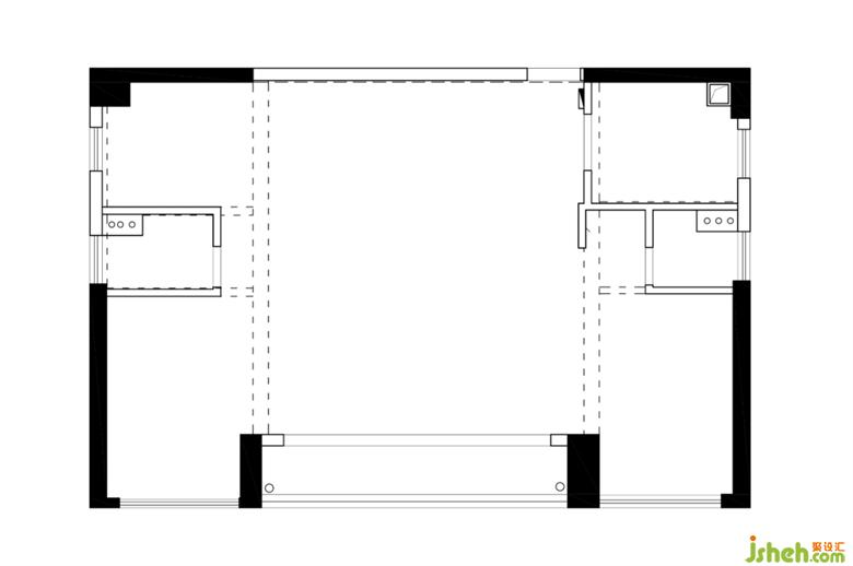
#1.非常罕见的对称式户型,空间利用率极高,改造空间很足,户型缺点也很明显,南北不通透,流动性较差;
#2.尽量要有独立衣帽间,多收纳;
#3.希望要有办公的地方;
#4.家里有钢琴等乐器,希望合理放置且不占空间;
#5.需预留空间区域提供玩乐,家庭互动;
#6.卫生间需要浴缸。
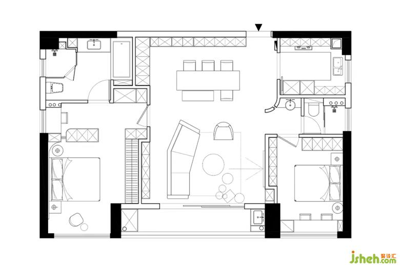
平面方案
House type structure

/改造亮点/
➊客餐一体,保持公区开阔性,一进门就能感受开阔视野;
➋一家三口居住,保留两间卧室即可,两间不含内卫的次卧合并成主卧空间,打造成带衣帽间、书房以及卫生间的豪华套房,居住体验便捷舒适;
➌外卫干湿分离,位于客餐厅中心,动线便捷,区域分布合理;
➍儿童房紧邻外卫,靠窗打造舒适学习区,给孩子独立便捷的个人空间,一家三口生活幸福指数大大提高。
01.
A LIVING ROOM
奶油 现代
客餐一体搭配统一大平顶设计,公区开阔清爽,奶油色调爬满墙面,地面通铺原木色地板,家装设计整屋呈现干净温馨的气质氛围,有着治愈一切的“家”的味道。
沙发款式低矮简洁,绒布搭配绿色为空间注入复古格调,在大面积浅色调中作为加强与点缀,沉淀出客厅的优雅与惬意。
沙发不靠墙,背景墙打造整面储物柜,卧室入口隐藏其中,奶油白一直延伸至餐厅区域,家装设计空间整洁统一,视觉效果更加开阔清爽。
储物柜中穿插开放格,收纳书籍或是作为展示柜,是沙发背景的点缀,亦能提供丰富多变的储物方式。
电视墙的悬浮设计大气轻盈,减轻满屋柜体带来的沉闷感,消弭纯色简约中的单调乏味。家装设计水磨石地台搭配镜面效果,使得奶油风更加清透简洁,加强空间纵深感,整体清爽不腻。
借用外卫洗漱台部分区域,将墙面转角向内凹陷,形成圆润的弧面,中间打造线条状镂空设计,加强空间关联感,整体造型做为玄关端景,提升回家的仪式感。凹面效果更能直接放大公区面积,视觉上更加流畅开阔。