欢迎光临聚设汇,装修找设计就上聚设汇!
   咨询电话:15602987227
登录    注册
聚设汇
首页 > 家装 > 《蓝调生活》130㎡法式度假风设计,青花兰+奶油白,优雅浪漫萦绕整屋

《蓝调生活》130㎡法式度假风设计,青花兰+奶油白,优雅浪漫萦绕整屋

项目信息

⊠ 项目地址 /  深圳 罗湖 帝景台法式度假风设计

Address / luohu,shenzhen

◫ 项目面积 / 130㎡ 

Project area / 130㎡

▣ 设计机构 / 时光筑造空间设计

Design Organization / SGZZ interior design

【1】业主憧憬

法式度假风设计谱写富有情调 优雅 慵懒 度假气息的艺术宅

——

美好舒适的家,一定包含居者喜欢的一切

舒适的色彩与装饰,习惯的布局与动线......

还有那一份令人放松又安心的踏实感!

本案业主希望在比较简洁的度假风格的基础上加入一些异域的风情,所以我们用了很多非洲和摩洛哥的元素,让整体风格更多元化。法式度假风设计将现代元素与传统法式融合,摒弃了原本繁复的造型与装饰,优雅、乐趣和舒适的理念贯穿其中,流畅的线条和唯美的造型,在轻法式格调的低吟浅唱里,静诉时光的美好。

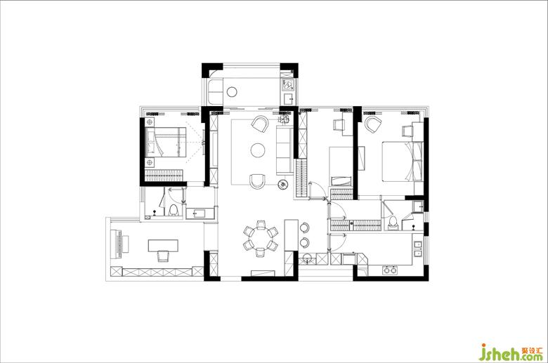
【平面方案】

House type structure

户型方正,生活核心区较为宽敞,各个卧室分散在公区周围,空间利用率较高。

设计亮点

Renovation points

01

法式度假风设计打开厨房区域,重新规划整合,将原始的生活阳台充当西厨,原本的厨房则用于开放式西厨,隔断餐厅与中厨,形成中西分厨的实用性布局;

02

保留原始的四房格局,将靠近餐厅的房间用作独立书房,满足屋主作为老师的实际需求;

03

利用走廊空间,在主卧的的进门处设置衣帽间,形成舒适便捷的套房区域;

04

LDK一体化设计,生活动线舒适无比靠近宽敞大气。

本案屋主喜欢青花瓷的蓝色、又喜欢法式度假风格,所以在法式度假的基础上加入蓝色的元素。法式度假风设计整体空间以清爽的白色为主色调,让人一下释放所有的压力,再加上少许亮色点缀,突出视觉层次感,同时也给空间增添些许生气与温度。

/客厅/

客餐一体化布局,小花砖与木地板自然过渡,人字拼搭配拱形,法式风情奠定全屋基调。法式度假风设计奶油白涂料柔和温馨,搭配一颗椰子树,屋主想要的度假风油然而生,微风拂面令人沉醉。

蓝色丝绒沙发,靠背采用拉扣设计,法式度假风设计注入满满欧式风情,茶几、地毯、单人座椅以及装饰画,这些软装富含浓厚的摩洛哥元素,异域风情让整屋风格更加多元化。

客厅不设电视,石膏线条包裹的拱形中嵌入收纳柜,模仿法式壁炉的形状,下方用黄铜金属打造开放格,独特的造型下,法式度假风设计却能满足不同的收纳需求,颜值与使用二者兼得。

电视墙用来装饰和收纳,观影娱乐则用投影仪代替,上方槽内嵌入自动升降的投影幕布,法式度假风设计赋予空间更多的可能性。

/餐厅/

法式度假风设计在优雅精致的小花砖中展开餐厅序幕,圆形小巧餐桌搭配仿罗马柱桌腿,刻画一片艺术感满满的用餐区域。

岩板桌面纹理与木材相似,呼应桌腿的木格栅与餐椅的藤编,摆放实木烛台,精致感溢满整个餐区。

设计收费:面议 元/平             

擅长类型: 家居设计,豪宅设计,别墅设计

在线咨询

扫描二维码关注我们的微信

深圳市聚设汇文化传媒有限公司
主编热线:15602987227
总部:深圳市罗湖区梨园路128号宝能汽车大楼416单元
佛山、东莞、成都、重庆、福州、厦门、南昌、武汉、
杭州、苏州、温州、郑州、长春、沈阳、贵阳、柳州、
哈尔滨、九江等城市设立办事处
© 2017-2021 Jsheh.com 版权所有 粤ICP备17079093号
展开
回到顶部