项目地址 / 深圳 南山
Address/nanshanshenzhen
项目面积 / 145㎡
Project area / 145㎡
主案设计 / 刘金峰 尹娟
Main case design/Liu Jinfeng yinjuan
设计公司:时光筑造空间设计
业主一家是三代同堂居住,事业有成的男主,温婉贤淑的女主和一对可爱的儿女,让人印象最深刻的是非常具有四川爽朗特色的爷爷奶奶。
居住空间是希望主要解决日常收纳的问题,能增加一个书房或者储物间以及一个专门的衣物间,喜欢简约又艺术的风格。
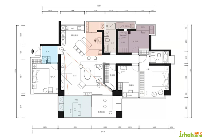
原始的户型结构虽然较为复杂问题也比较多,但业主提出了需求,作为一个专业的设计团队,必须只能回应两个字“办它”以及一个结果“满意”。
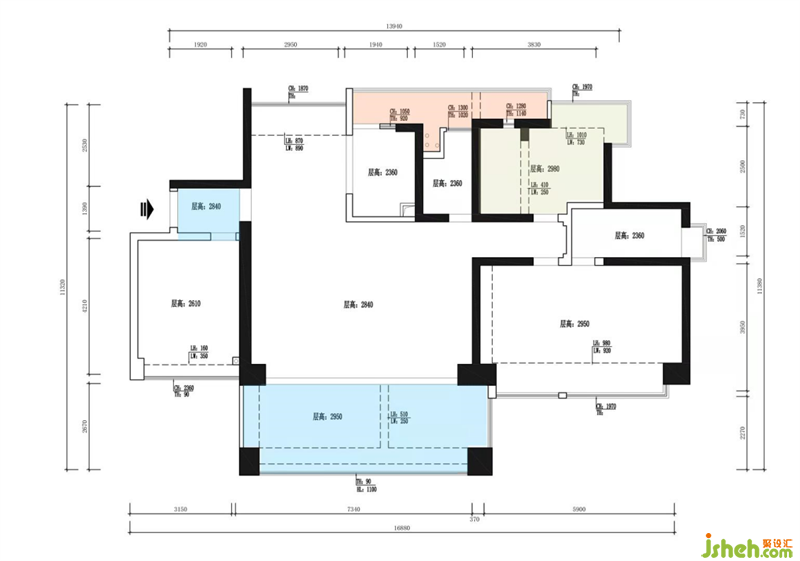
空间示意图
1 运用了一些弧形,曲面的元素来寻找空间的关系,并且让空间看起来更趣味和柔化一些.
2 通过不同材质不同形式和颜色的处理,力求让空间的层次感更加丰富多彩。
3 虽然全屋几乎都是收纳的柜子,却让空间显得不呆板,充满变化。
4 整体家具饰品的选择始终坚持冷门的原创设计款,在整体稳重的搭配中又多一些艺术氛围,让空间有种不一样的生活品味。
porch/玄关
Fan Fu interior design
xuanguan
原本户型的进门玄关处有一个承重墙导致了门洞无法扩宽,房梁也比较低,并且入户门洞和走道不居中,进门第一感觉会让人觉得非常的压抑和不便利。因此我们通过将入户空间处的这个房间进行内退从实际的结构位置来增加入户的宽度,艺术家设计并且运用木和白两种颜色以及柜体材质的对比将入户空间的宽度从视觉上进行放大和延伸,这样每一次回家的时候第一感受到的就是一个光线通透又宽敞的温馨大空间。
原户型的客厅空间较大,旧的不实用造就了改造后的功能一体化,新的客厅空间兼具了书房区域 娱乐区域以及休闲区域和收纳功能,休闲 工作 学习 收纳它们在一个空间内相互交集组合成一个家里里外外的日常内容。
沙发视角下的客厅,有家里的人等待即将回家的人儿,热气腾腾的饭菜,被打扫得锃亮的地板,刚刚熨烫好的衬衫,一束顺手买回家的鲜花,爱与被爱都是一种幸福。
艺术家设计利用原本的景观阳台,将其一分为二,一为客厅的开放式书房,一为休闲的景观阳台。客厅和书房之间做了一个倒弧形的端景艺术装置,从视觉上起到不分割空间作用的同时呼应书房的雅致氛围,也让空间和景观的关系变得更加和谐。
利用原本客厅空间“大”的优势继续发挥,隔出了一个隔间区域作为储物间和衣帽间,并且在侧面开了一个拱形的窗户从阳台方位进行采光。弧形的墙面和拱形窗户搭配在一起瞬间有了童话王国般的氛围和欧洲艺术文化的感觉,利用木饰面作为沙发背景墙,有趣的形态搭配,高档的材质,温馨的颜色,不用过多的装饰居住空间就能变得舒适惬意且妙趣横生。

木地板的小细节,抬头有光亮,低头有惊喜。

舒适温馨的布艺沙发,黑色的大理石茶几和金色的不锈钢矮凳十分般配,黑金搭配的轻奢质感让空间视觉层次感十足。

