欢迎光临聚设汇,装修找设计就上聚设汇!
咨询电话:15602987227
登录
注册
全国
[切换城市]
X
城市列表
全国
深圳
广州
佛山
东莞
福州
厦门
上海
北京
柳州
九江
杭州
南京
发布需求
搜索全部
家居装修
设计师
首页
家居装修
公寓
一房
二房
三房
多房
复式
别墅
商业装修
酒店
办公
餐厅
会所
样板房
店铺
展厅
文化
酒吧
SPA
茶楼
商场
学校
咖啡厅
售楼处
电影院
其它
设计师
建材商城
陶瓷
卫浴
五金
墙纸
布艺
涂料
衣柜
橱柜
软装
家具
厨电
音响
家电
大理石
门
新闻资讯
精英专访
高峰论坛
对 话
行业动态
装修课堂
首页
>
家装
> 观林壹品
观林壹品
发布日期:2019-10-27 点击:5535次 分享到:
QQ空间
新浪微博
腾讯微博
微信
人人网
装修公司
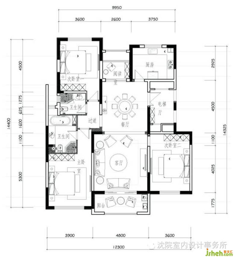
室内平面图
装修公司
共3页:
上一页
1
2
3
下一页
沈院
沈院室内设计事务所 设计总监
设计收费:
400
元/平
擅长类型: 家居,别墅,展厅
在线咨询
我的作品
更多>>
苏州别墅设计:简约平和的心中秘境
点击:16991次
铜雀台
点击:3283次
中海国际• 清新居
点击:7450次
回溯
点击:3021次
打破枷锁的定义
点击:6600次
同类型案例推荐
更多>>
万科天空之城住宅设计
点击:4688次
宝能公馆大平层设计
点击:3183次
合肥葛洲坝中和府私人宅邸设计
点击:4576次
绿与光之诗家装设计
点击:3450次
天鹅港华庭大平层设计
点击:4620次
关于我们
了解聚设汇
加入我们
成为设计师
成为设计师
发布作品
商家入驻
商家入驻
发布产品
扫描二维码关注我们的微信
深圳市聚设汇文化传媒有限公司
主编热线:15602987227
总部:深圳市罗湖区梨园路128号宝能汽车大楼416单元
佛山、东莞、成都、重庆、福州、厦门、南昌、武汉、
杭州、苏州、温州、郑州、长春、沈阳、贵阳、柳州、
哈尔滨、九江等城市设立办事处
© 2017-2021 Jsheh.com 版权所有
粤ICP备17079093号
展开
收缩
QQ咨询
在线咨询
282039429
电话咨询
15602987227
回到顶部
装修计算器
北京
上海
广州
深圳
佛山
福州
长沙
株洲
湘潭
衡阳
岳阳
武汉
郴州
杭州
南京
苏州
成都
重庆
郑州
福州
厦门
天津
西安
合肥
常德
无锡
济南
宁波
㎡
一室
二室
三室
四室
一厅
二厅
三厅
四厅
一厨
二厨
三厨
四厨
一卫
二卫
三卫
四卫
一阳台
二阳台
三阳台
四阳台
咨询报价
您家的装修预算
?
元
材料费:
?
元
人工费:
?
元
设计费:
?
元
质检费:
?
元