项目地址/Project address:苏州中海国际社区
设计公司/Design company:沈院室内设计事务所
设计/Design:沈院
项目类别/Item category:公寓
项目面积/Project area:146㎡
软装/Soft loading:沈院室内设计事务所
摄影/Photography:王浩
清江一曲抱村流
长夏江村事事幽
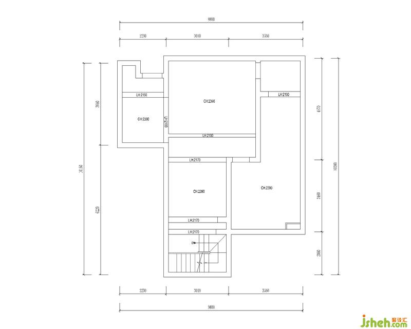
1F
-1
原始结构图△
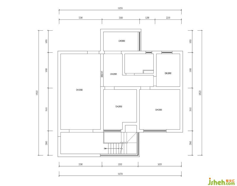
1F
1F
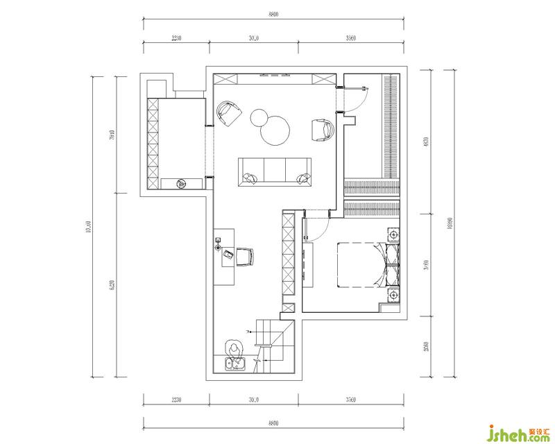
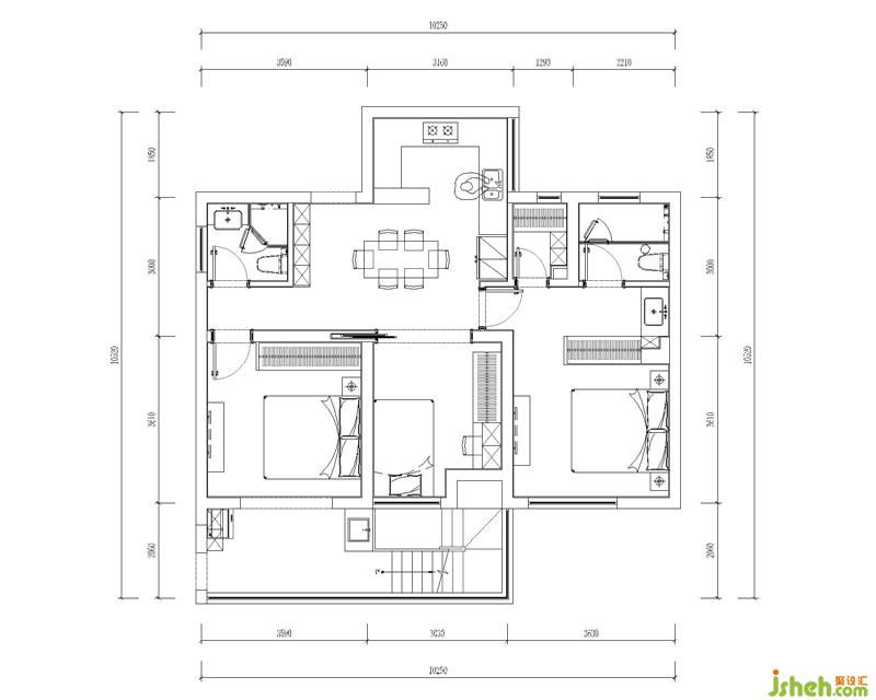
平面布置图△

圆弧形的收纳柜
满足收纳的需要也提供视觉的享受
搭配莫兰迪蓝色,增强温暖氛围
光影在木质地板上漫射
加深沙发的翠绿
也增强茶几的光泽
家是一个整体
连配色都是
厨房采用蓝色的主色调
半开口的烹饪区域
给予主人充分的发挥空间
一举一动,都是主角光环
厨房与餐厅并没有隔断
一体的设计更具有整体感
双开门冰箱满足储物的需要
不远处黑色的时钟的存在
提升空间的现代感
公寓装修设计

