项目地址/Project address:苏州普禧地产吴江桃源观云
设计公司/Design company:沈院室内设计事务所
设计/Design:沈院
项目类别/Item category:精装修样板房A户型
项目面积/Project area:85㎡
软装/Soft loading:沈院室内设计事务所
摄影/Photography:RICCI空间摄影
一切重新开始
风霜雨雪各自为序
万物伸长手臂
把内心的空阔还给星球
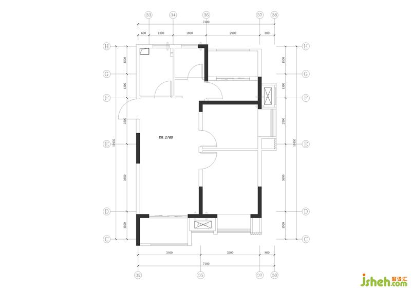
原始结构图△

“我不需要别人来定义”
这是一个大胆前卫的空间设计
红色的存在使得整个白色空间富有亮点
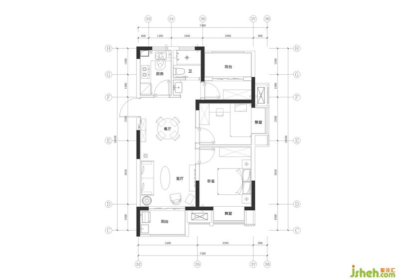
样板房设计

红色的Q弹沙发、红色的圆形小桌
让空间氛围由苍白单调转向火热而醒目

开放式餐厅位于厨房与客厅之间
大理石黑色条纹地砖造就空间分区
哑光绿的椅子在低调中带来复古感
侧耳倾听
流光溢彩金属餐具带来高级、细腻的乐曲
吟唱属于一家人的小调
也响起迎接朋友的华章
样板房设计
棕色、绿色和白色窗帘层次分明
同时也满足不同层次的光线需求
金属床头灯兼顾照明与艺术的追求
样板房设计
一个温暖的拥抱
给自己,给家人
晚安,全世界
“此中有真意,欲辨已忘言。”