项目信息
项目地址:成都风华苑复式装修设计
设计机构:尚舍家室内设计
设计团队:杨超 张婷 王希宇 陈思远
空间摄影:名堂建筑空间摄影
项目面积:206㎡
完工时间:2022年12月
业主是一对年轻夫妻,热爱旅游、阅读,既喜欢有历史有底蕴的老家具又喜欢时尚的事物。两个人都非常喜欢宠物,家中养了5只狗狗和1只猫猫,活泼可爱的小家伙们为整个家带来了很多快乐。两个人都喜欢相对简单的空间,希望家以白色为主,干净纯粹,不需要太多色彩,材质的选择也倾向于简单自然。
成都风华苑复式装修设计师在规划整个空间的布局时,充分尊重业主诉求,在保持空间原有的简单结构的同时,对局部的窗户进行了调整与拓展。整个空间用色单纯,线条纯粹,通过古董家具与新家具的结合,打造出了一个萌宠满屋的中古时尚之家。
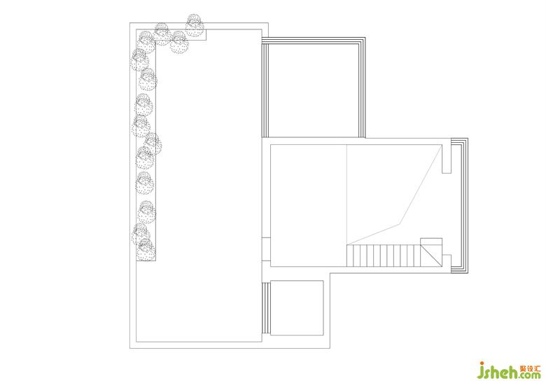
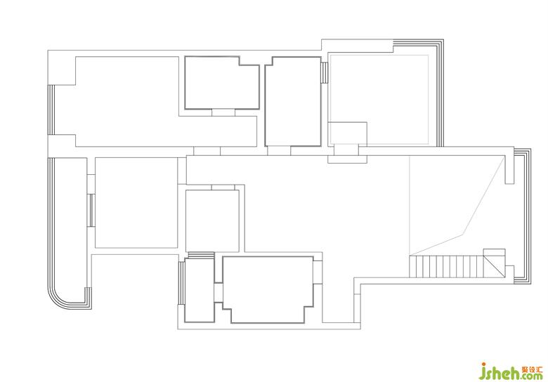
项目平面图
改造前二楼
改造前一楼
改造后一楼
改造后二楼
LIVING ROOM
客厅
空间以白色作为主色调,成都风华苑复式装修设计利用柔美的弧线做串联,勾勒出空间优雅柔和的一面。选取深色沙发,作为视觉的焦点,在用色上趋于简单与平衡。
空间保留原有的挑高空间,因自然光入室内,开敞明亮,让平日里在客厅活跃玩耍的小宝贝们,更加无拘无束,为整个家带来满满的快乐与活力。


客餐厅相贯通的布局,让整个空间更加开阔通透,简单的动线让平时的生活更为便利。
成都风华苑复式装修设计通体的白色并没有显得单调,因为中和其中的深色家具将更加厚重稳重的质感带入其中,在整个搭配上显得更加和谐有致。

