休憩之湾,东方意蕴
典雅清远的意境熏染
老人房安排在二楼采光非常好的房间,透过落地大玻璃窗便能欣赏到花园的风景。别墅设计专门做了一个小书桌,便于爱看书看报的老母亲使用。
老人卫精心采用适老化设计,满足老人日常所需,安全便利。老人房距离电梯最近,利于其日常行动。

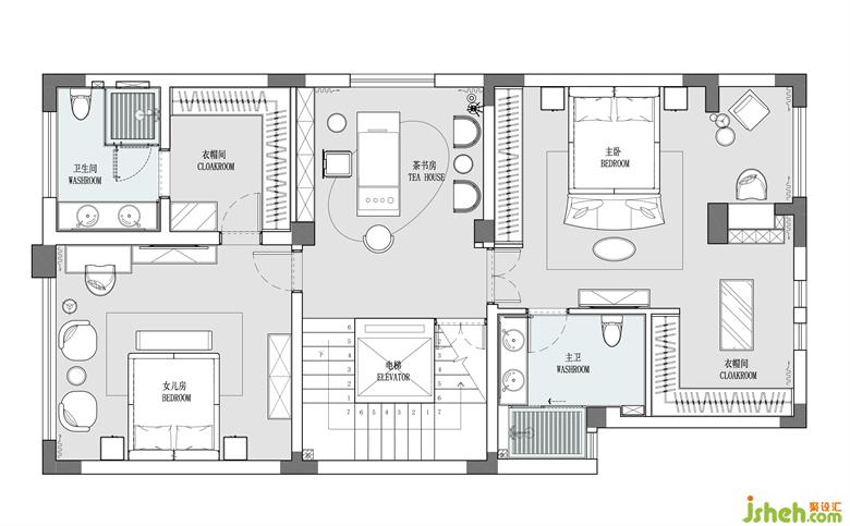
三楼设计了两个套房:主卧套房和女儿套房。中间有一个茶书房,供闲时阅读品茗,同时满足夫妇二人的交流需求。
主卧大气开阔,梳妆台,衣帽间,主卫,所有空间都宽敞有加,对于日常的生活起居而言,既具有很强的实用性与功能性,又将东方意境的审美融于其中,温雅有致。

女儿套房别具温婉气息,以优雅淡然的色调作为基底,柔静舒适。别墅设计含苞欲放的花朵图案背景墙平添几分典雅意蕴。


闲逸自然的终极退休别墅,让夫妇二人退休后的生活更加充实多彩。尺度开阔、温雅大气之余,处处都与自然相接,通风采光极佳,室内与室外存在着完美对话。对于适老化设计的精细考量,让空间健康舒适、安全便利。在充满东方典雅意境的诗意空间中,夫妇二人能够自在而居,返璞归真,惬意享受退休后的安逸生活。
项目平面图
▲ 1L
▲ 2L
▲ 3L
▲ 4L
更多别墅设计请关注聚设汇装修平台: