项目信息
Project information
项目类别:精装房改造别墅设计
项目地址:成都 · 凤起朝鸣
设计机构:尚舍家室内设计
空间摄影:李恒
项目面积:385㎡
完工时间:2022年4月
木欣欣以向荣
— 陶渊明《归去来兮辞》
从古至今,人们天性热爱自然,对赏心悦目的自然风景满怀向往。英国“桂冠诗人”华兹华斯曾说:淡淡的花香是最好闻的花味。在对自然和谐之美的赞赏中,他提倡的正是一种返归自然的闲适生活。本案业主所追寻的理想之家,正是这样充满自然诗意的温馨有爱之所,与此同时,又兼具现代轻奢的简雅与品位。
本案业主是一对年轻的80后夫妻,二人拥有一儿一女,儿子已经上小学,女儿还是一个小baby。男业主经营一家IT企业,性格爽朗,喜欢自然和自驾游。女业主爱好摄影与旅游,二人对于自然与生活都有着发自内心的热爱。别墅的葱郁花园所营造出的浓郁自然气息,正为这个温情之家铺展开了最佳底色。
设计师对原有空间布局进行了合理的调整与改造,把之前一楼和二楼的三个卧室进行了重新规划与色彩定位,将旧有的中性空间改造得更为丰富而具针对性,使其氛围调性更符合特定居住人的居住与生活习惯。与此同时,极大拓宽了收纳,注重在解决功能问题之上的趣味性融入,使空间整体相宜的同时又精于细节的表达。
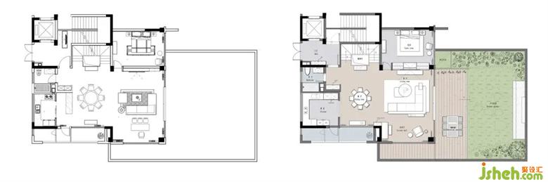
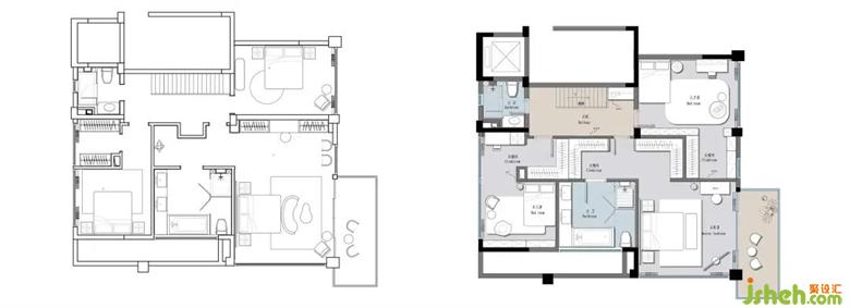
项目平面图
Project floor plan
◉| -1L
◉| 1L
◉| 2L
01 花园
对望自然,迎面相拥
别墅设计改造前

改造后
在现代都市快节奏的生活之下,拥有一个独属花园,似乎是一种奢侈,花园承载着人们对自然生活的无限向往,是现实与精神世界的双重绿洲。别墅设计于喧嚣的城市生活中,在家里独辟一块世外桃源,让人更亲近自然,使人的整个身心都得到滋养。
园中枝繁叶茂,明媚的阳光尽情倾洒在院内,当白色窗帘随风飞舞的瞬间,业主家养的活泼好动的小白兔也在蹦跳间入镜,与俏皮的Qeeboo白兔椅完美呼应,正是镜头定格的神来一笔。

光影斑驳,木植欣欣向荣。花园设置有专门的休闲区,一家人或者约上三五好友,别墅设计在这里可以坐观满园绿意,酣饮畅聊,尽享慢生活带来的惬意时光。

