项目地址:深圳市龙岗
设计面积:110平方米
主创设计:刘平
施工单位:目申设计
主要材料:KD免漆饰面板、红棉花免漆板、二手柚木地板、木纹砖、长虹玻璃、黑色不锈钢
专业摄影:乐在拍
前言
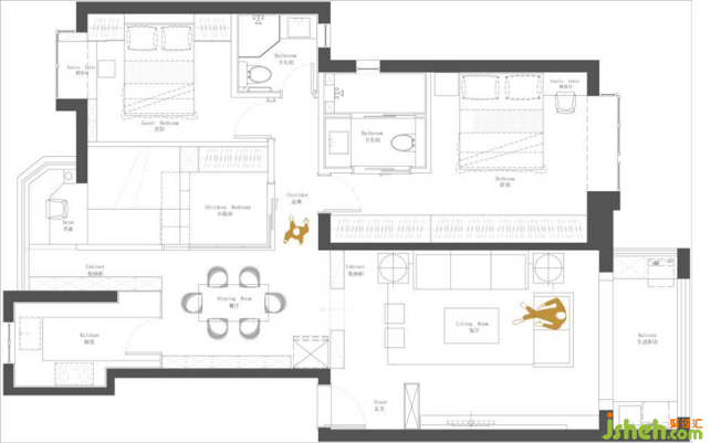
户型改造一直是我们所喜欢和擅长的方向,此户型的格局是很有意思的,客餐厅的高差有三步台阶。沟通的过程中了解到,因为楼层的原因,此户型的采光比较差,特别是厨房餐厅区域,不仅狭小,同时采光通风都是非常不好。因为是三代同堂,对于厨房,餐厅的使用空间是有很大的需求的,同时还有海量的收纳要求。特别是厨房,还需要考虑到有单独的一个区域能够擀面皮包饺子……,因空间格局原因,卧室的数量是不用做调整,只是对于房间内部的格局和衣柜需要进行设计,尽可能的满足居住需求。原卫生间是没有做干湿分区,对于居家清洁维护比较麻烦,在新设计中,都需要进行考虑干湿分区。生活阳台的功能主要是考虑两台洗衣机的位置,还有一个简易洗衣盆,平时可以清洗小件衣物。整理完客户的需求,我们就开始了正式的设计……


室内设计师

室内设计师

