深圳南山丨学林雅院
服务模式:全案委托(设计+软装+施工)
全案负责:目申团队
设计面积:100㎡
户型格局:三室两厅
空间摄影:乐在拍
原始结构图
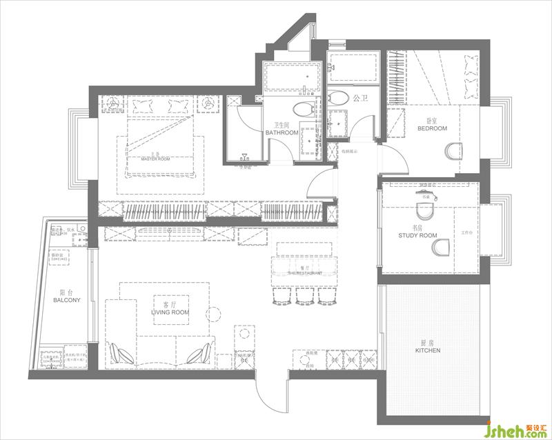
平面布置图
家居设计效果图
客餐厅
客厅
书房
主卧
家居设计实景照片


当下养宠物的年轻人,已经脱离了单纯买猫别墅家具,而是在装修的时候就从猫的生活习性去考虑「家」的动线规划,业主希望猫咪在家不仅是宠物,同时还是平等的空间使用者,让居所真正实现「人猫共乐」。因此,该案我们尝试用猫的视角去审视,从空间功能的本质出发,去探讨如何从尺度、光线、生活习惯去研究。

人和猫作为空间使用者,我们需要平衡他们作为不同个体,如何更融洽的去看待这个空间的功能和尺度。日常收纳、饮食起居,交流沟通、生活情境和品质的展现等等,这是人对于空间的诉求。喵星人,空间需要符合其尺度的功能设计,吃喝拉撒的区域、游乐的范围、休憩的场所。
