项目地址:深圳市福田
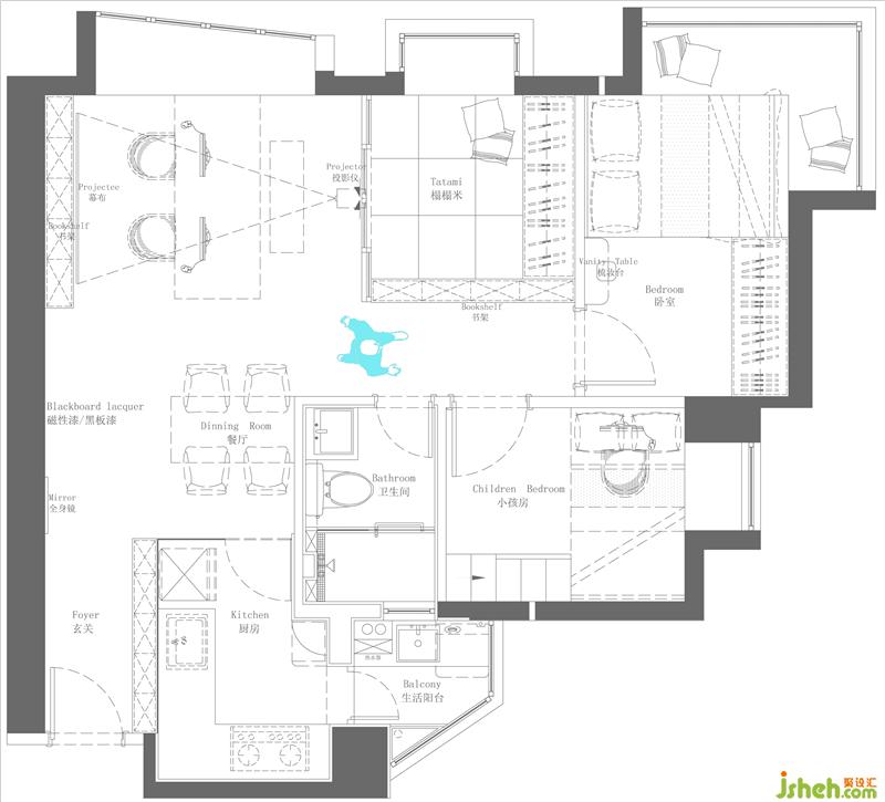
设计面积:54平方米
主案设计:刘平
施工负责:目申设计
主要材料:免漆板、复合木地板、花砖、不锈钢烤漆、玻璃隔断
专业摄影:乐在拍
前言:
小户型空间功能属性一直是个研究课题。此户型位于深圳福田口岸,业主是从事金融行业,工作性质对于在家办公是有非常强的功能需求。在一线城市,年轻白领对于家的功能使用呈现出多样化的趋势,传统的客厅、沙发、电视已经不能适应现代年轻人生活工作需求,客厅、餐厅等功能已经越来越多元化和开放特性。在空间功能的规划过程中,我们尽可能的避免使用非常富丽的手法去塑造空间,从空间功能的本质出发,去探讨如何从尺度、光线、生活习惯去研究。室内设计师

室内设计师


室内设计师

