项目信息
项目地点 | Location : 上海普陀 宗鑫公寓 | Shanghai, China
设计面积 | Area : 200㎡
设计团队 | Design team : 木梵空间设计事务所
本案为一对年轻的夫妇,对空间也有自己独到的见解,故而我们希望打造一个有更多可能性的空间,让空间之间的交互性更强。我们不给空间一个明确的定义,更多的是留给居住者自我发掘的空间,我们认为这样能让他们有更多的归属感。家装设计在空间规划时,在尊重个体隐私的基础上,尽可能打破所有空间之间的界限,去创造无限可能,让空间有呼吸感,让空间有更多的趣味性。
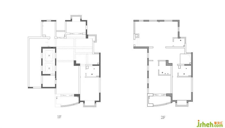
△ 改造前 | 原始结构图 BEFORE | Original structure
△ 改造后 | 平面方案图 AFTER | Plane figure
一层原始是公共区域,考虑到两个业主都是律师,会经常加班,所以调换一、二层的功能,将卧室区域放于一层,方便回家后能直接进入到自己的私密空间。整个二层一分为二,一侧是以客厅休闲为主,另一侧则围绕餐厅厨房展开。互换功能后,二层原始墙体都过于封闭,家装设计需要打开墙体重新规划成一个通透的空间。这样既方便了生活动线,又在空间上形成了交互互通,不同功能区域之间彼此独立,又有着贯通的流动感。
#玄关 | Entrance
#玄关 | Entrance
把原始在玄关处的储藏室面积缩小,分出一个玄关鞋柜,以便进出门换鞋以及放一些随手物品。异形镜面的加持,让整个玄关在木色与白色的交融中多了一份俏皮。家装设计通过镜面反射,借用落地窗光线,玄关也变得更加明亮。顶面以大面积白色平铺,降低视觉上的压抑感,给人以更开阔的视觉延伸。
#客厅 | Living room
#客厅 | Living room
整体空间以经典黑白灰加以原木色为主题配色 。Living Divani 的定制款沙发是整个区域的核心,搭配十二时慢的艺术感茶几,呈现出鲜明有力的表现力,主宰了空间的第一印象。黑色、木色不同纹理的门板搭配上镜面给人带来的呼吸感,家装设计不规则的设计中又有着规则的舒适度。收纳功能也在隐形中得到了提升。
#客厅 | Living room
悬浮桌板贯穿了两个区域,给空间带来通透感以外也增添了互通性。
#客厅 | Living room
顶天立地的储物柜,开架与门板的结合,集美观与收纳为一体,理性框架与人文艺术感性碰撞,给空间带来更多趣味。家装设计通过家具的巧妙搭配,整合整个空间,创造出满足收纳、办公、休闲之需的多功能体块,不定义空间的属性,给予空间更多的使用方式和涵义。
