项目概况 | Project overview
项目地点 | Location: 上海闵行 皇都花园 | Shanghai, China
设计面积 |Area : 190㎡
设计团队 | Design team : 木梵空间设计事务所
屋主对房屋的畅想 | Thinking
本案是一个三居室的设计,年轻夫妻和两个小孩居住,原始精装房的布局与色调都不是业主所喜欢的,希望能够全部重新布局。业主希望有一个开阔、互通的公共空间,家装设计让原本封闭的空间能有互动性。希望有一个中西结合的开放式厨房。在家中能有足够多的收纳空间去储藏各种物品。比起四四方方的空间设计,业主更希望能够加入一些柔软的部分去柔化空间棱角,为空间注入温度。
方案分析 | Scheme analysis
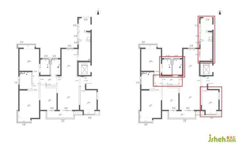
△ 改造前 | 原始结构图 BEFORE | Original structure
原始房型是一个四居室的户型,由于四人居住,只需保留三间卧室,结合采光与朝向,南侧次卧不保留,根据业主需求重新做规划。家装设计原始北面卧室套内卫生间与公共区域卫生间面积都过小,不便于平时起居使用。原始过道区域也过于狭小,整体动线不舒适。原始厨房区域比较鸡肋,餐厅区域又太狭长,需重新做布局调整。
△ 改造后 | 平面方案图 AFTER | Plane figure划分区域,优化动线
把设备间纳入中厨后,扩大中厨空间满足正常的一个功能性。家装设计外部原餐厅空间一分为二,新增西厨区域满足业主日常放一些咖啡机等小型电器,能操作一些简单的西式料理。家装设计增加功能性的同时让餐厅与中西厨互通,也解决了原餐厅过于狭长的弊端。
拆除多余墙体,打开原始南面客卧,改变其功能属性,变为敞开式书房,与客厅联动,让原本开间不大的客厅通过隔墙拆除,视觉长度延伸,空间更开阔。
家装设计把原始北面两个面积都不大的卫生间合二为一,变成一个三分离的大卫生间,既能满足两个孩子日常使用,又能作为一个公共区域的卫生间,双动线的设计不浪费空间,又能满足业主想要浴缸的需求。
△ 过程图 Process Diagram
规划空间,储物升级
改变男孩房和主卧进门墙体,扩大过道面积后,新增衣帽间,男女主人的衣物可以分开存放,极大的增加了储藏量。书房后侧设置了 L 型储物柜,可以满足男业主储藏鞋物的需求。家装设计每个空间都设有高柜去收纳各空间所需要收纳的物品,使整个空间在视觉上保持整洁、舒适。
玄关 | Entrance

玄关 L 型鞋柜底部镂空,用镜面柱体支撑,形成视觉悬浮。中间用黑色不锈钢横板连接两个面,可以进门随手放一些随身物品。家装设计两面柜体中间留有一条缝隙,若隐若现的人物动态从中透出,给玄关注入了动态活力,避免入户一望到底的同时也使空间有互动性。
客厅 | Living room
当空间重组之后,除了空间更加开阔之外,视觉上也大气了很多。吊顶采用不锈钢流线型设计,间接拉伸了空间层高,也增加了柔软度。家装设计电视背景墙电视部分用黑色岩板做区分,后侧用镜面形成穿插结构,使整个背景富有层次感。
客厅与书房的隔墙中间留有一条缝隙,上设钢板连接至书房,让两个空间有了互动,钢板上也能放一些业主收藏的潮玩手办,一举两得。
黑色 Kristina Dam Studio 不锈钢边几搭配磨砂皮 Gamma 沙发,不同材质组合在一起,赋予客厅更多感官体验。