咖啡厅设计
盒子外的用餐区¸私密与开放、实与虚、幽暗与明亮,传达出不同的空间情绪。
阳光温暖的咖啡馆,更是舒适的工作环境。
阳光透过大大的落地窗照射进来,即使是在寒冷的冬季,也暖洋洋的
大面积的吸音墙面使得空间有如博物馆般的异常的沉静。
舒适的角落

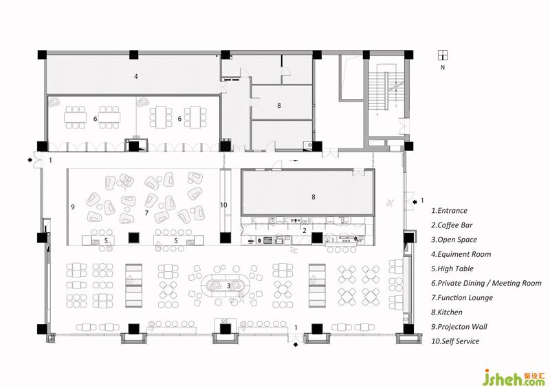
较大的多功能区与长吧台与厨房结合为一个大盒子,为整个空间的主体,剩下的空间为座位区,布局较为对称。分别为一人位,两人位,三人位,四人位,VIP。2个小木盒子卡座将散座区分为3个区域,中心为休闲沙发区。
空间以白色与木色为主,自然简洁,材质上采用橡木地板与白色木色板为主要材质,墙面上大面积使用的白色木丝板材质有效降低与其他区域的相互干扰,实现完美的声学效果。咖啡厅设计
