Tasty Journey of Nuan Nuan Station Taiwan
In the winter of Beijing, snowflakes arrived on the road as expected, and the colorful neon lamps illuminated the night. On your way home from work, a warm melody came from my ear: "It can be true, what you say, I am willing to go, the melody of the small train swaying ... ", looking up through a few windows, you see two petite red and green postboxes, a large fig tree, and the warm wood color in the shop. When you enter the shop, it is as if you are crossing the tunnel of time. I came to the warm station of singer Liang Jingru's singing melody, and this shop's name “nuan nuan pot” originated from this.
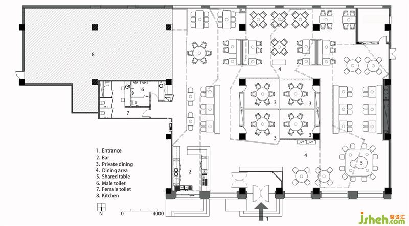
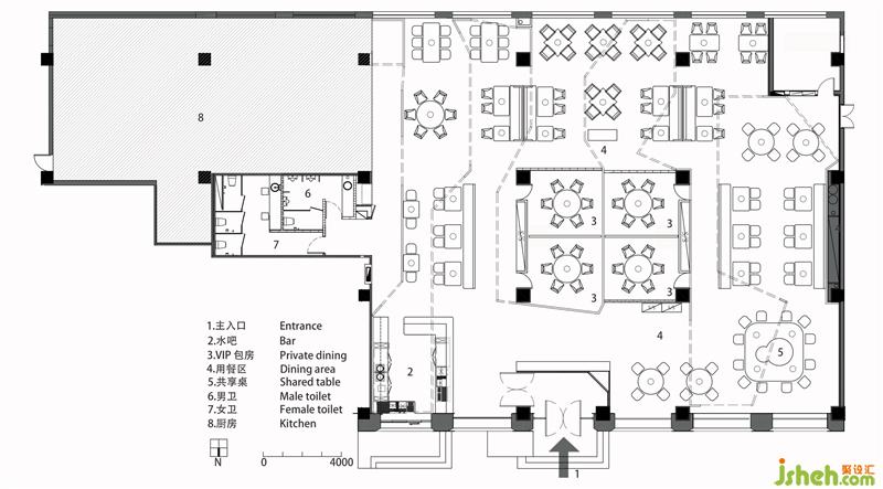
Walking into the shop, your eyes are filled with the atmosphere of the old railway station. A 28 vintage bicycle stood sideways at the door. Through the stained glass of various patterns, you can see the silhouette flickering and a large clock with a half face. Once you turn around and walk in, there are two mailboxes. Postboxes appear in pairs in Taiwan. One pair of postboxes was unexpectedly cute and became one of the hottest spots in Taipei because of the strong wind that caused them to become slanted. After the postbox, you see a clean small white brick countertops and the curved small white bricks at the corners. It is revealed to be simple and refined. The scent of brown sugar pearls rises, the warm fragrance permeates the entire coffee space, and the busy figures of the masters are as if they are lining up to enter the station.
Looking up, the shapes of the gables from the Taiwan Railway Station in the space rise and fall. It is sometimes parallel and sometimes curved, and the cascading gables are like jumping notes. When it lights up, it is a warm song. It strings up the warm sky, sheltering guests from the wind and rain, bringing warmth. The designer wanted to use the language of the gable to bring guests back to the ancient flavor of the old times and feel the customs of Taiwan during that time. Functionally, it also stabilizes the overall space vision and distinguish between spaces. The gable in the central area functions as a partition.餐厅设计







