项目名称:南山郡
项目类型:叠拼别墅
项目面积:445㎡
设计风格:新中式风格
项目地址:重庆.南山
竣工时间:2018年12月
主案设计师:刘熠/董丽
“采菊东篱下,悠然见南山”,是五柳先生笔下归隐山林的心志向往。设计师根据作者笔下的南山,打造出了业主心中对淡雅,自然的生活追求。空间整体清新明朗,下笔干净洒脱,不拖泥带水。体现一步一风景,一景一陶然。
负二层平面图
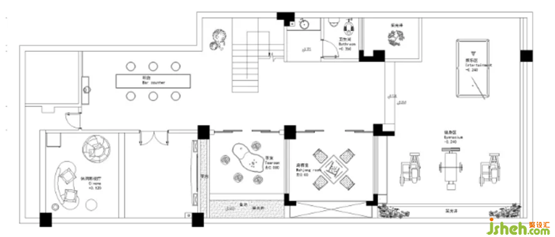
负一层平面图
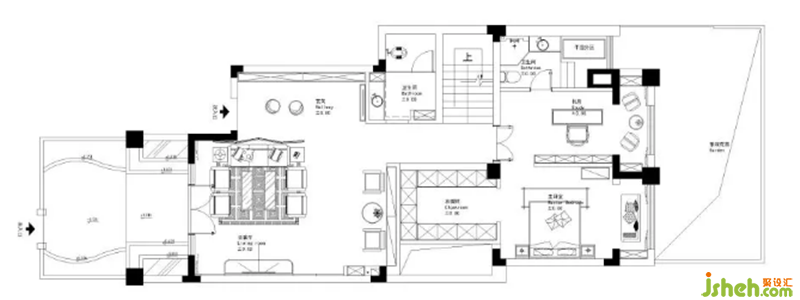
一层平面图
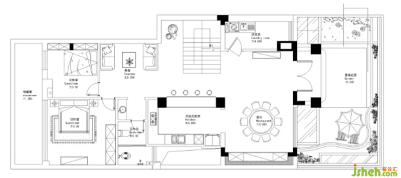
二楼平面图
玄关
进门玄关处采用实木条案,简约大气,点缀苍劲的松树,将点点的绿意引入室内。大面积实木家具的运用兼具人文气质,搭配简洁硬朗的线条,使整体空间富有层次感,把现代与传统发挥的淋漓尽致。别墅装饰采用木质隔断,让空间具有通透感,灵活性。使各个空间相互呼应,一气呵成。
吧台
客厅
客厅以白色为主,米白色的家具搭配薄荷蓝的配饰,不仅视觉上自由放松,同时体现出了空间的纵深感,延伸性。少许亮色,从中跃出,增加了一丝活泼。餐厅运用圆弧形吊顶,配合圆形餐桌营造围合感。


