设计机构| 百木室内设计机构
项目性质| 住宅公寓
项目地址 | 潮州 · 海博熙泰三期
项目面积|192 m²
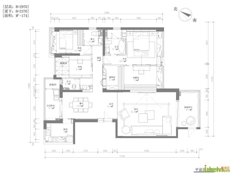
平面图

过道设计利用木的切割、线条灯的设计让客厅和餐厅做了一个合理的分割,充满现代感和穿越感,里应外合,营造出线条的美感;营造出来的空间序列,视线的通透、封闭、半通透也在这个过程中被精心的安排;进入这里,会有不同的空间感受。
本案中,室内设计师采用灰色为主色调,没有多余繁琐的设计,而是利用开放式设计,利用简单的线条,灰色调的大理石电视背景墙,地板为浅灰色的大理石瓷砖使空间一眼望去干净利落,带来视野的空阔感。在灯光方面利用藏灯而没有繁琐的吊灯,使得空间更加通透。室内设计师在软装方面搭配几何设计,淡淡黄色的点缀,视觉效果强烈,使空间个性鲜明。





