设计机构| 潮州百木室内设计机构
项目性质| 住宅公寓
项目地址 | 潮州 · 海博熙泰 ·五期样品房
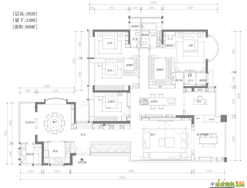
项目面积| 369m²
装修设计平面图

“隐”屏风的圆形花窗宛如一轮明月,半遮半透,不一样的玄空造景设计,可谓别出心裁。如山如月如云, 在形、境、韵的层次上进行感官的叠加。
“寓”一个个间隔一座座威风凛凛的石狮子,而石狮象征着一种富贵吉祥和神圣不可侵犯的气势。

“墨”客厅回归空间自然质朴的天性,沉静清淡的色彩,让整个空间的氛围有着中国浓浓水墨之感。透最本质的材料把中国的朦胧水墨之美呈现。



中国古典设计讲究对称,让协调的感觉平衡,与传统风格一样追求内敛,朴素。装修设计搭配上端庄成熟的中式家具,营造出一个充满文韵与庄重的中式居家氛围。