设计机构| 百木室内设计机构
项目性质 | 样品房
项目地址 | 潮州 · 海博熙泰 四期样品房
项目面积|235 m²
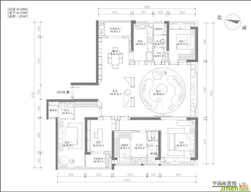
平面图



走进这套优雅的住所,玄关犹如艺术厅一般优雅并充满现代气息的氛围,在空间中肆意蔓延。造型现代精致,形成一个圆形的空间。
室内设计师以艺术为基点,展开轻奢质感开阔的空间动线,带来的不仅是一种视觉享受,同时也是一种低调奢美的生活体验。

玄关与餐厅区域相连接,阳光从大面积的落地窗洒入室内,悄然增加舒适感与空间感,奠定了整体现代简洁优雅的风格。
不锈钢的柜体使空间更加精致充满艺术感,将几何元素运用在细节中,在满足功能的使用上还增加材质间碰撞的视觉冲击,是品质生活的真实感受。




室内设计师对客厅的设计打破常规,摒弃了传统一字厅的布局,在其基础上打造非凡客厅,带来强烈的空间感和立体感,让整个客餐厅通透大气。
玫瑰金材质的穿梭,圆形的茶几和玄关的圆形造型,把“圆”元素呼应。大理石的硬中带柔,柔软的地毯和沙发一张一弛之间传递出生活的动态与平衡哲学。