欢迎光临聚设汇,装修找设计就上聚设汇!
   咨询电话:15602987227
登录    注册
聚设汇
首页 > 家装 > 不语空间 | 突破空间艺术的灵魂

不语空间 | 突破空间艺术的灵魂

/

生命本就纯真,设计本就纯净。

回归私宅属性,让居住者获得归属。

/

透过室内建筑的方式,体验空间、光影、材质、细节,透过以人为本的思考 探索现代住宅的生活方式,回归真实的需要。提升心理仪式性的转换,让住宅不仅是满足基本的需求,而是到达体验的感受,看到的不仅是设计,而是对于生活的深刻体会。

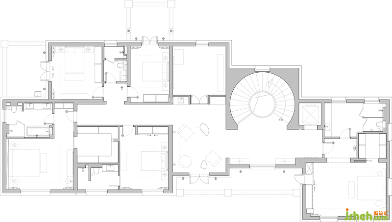
一层平面布置图

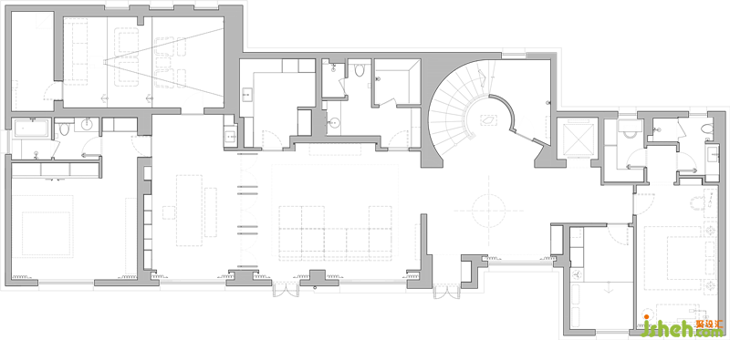
二层平面布置图

三层平面布置图

更多上海别墅装饰请关注聚设汇装修平台:

Y&J 上海亦鉴设计创始人

设计收费:面议 元/平             

擅长类型: 豪宅,别墅

在线咨询

扫描二维码关注我们的微信

深圳市聚设汇文化传媒有限公司
主编热线:15602987227
总部:深圳市罗湖区梨园路128号宝能汽车大楼416单元
佛山、东莞、成都、重庆、福州、厦门、南昌、武汉、
杭州、苏州、温州、郑州、长春、沈阳、贵阳、柳州、
哈尔滨、九江等城市设立办事处
© 2017-2021 Jsheh.com 版权所有 粤ICP备17079093号
展开
回到顶部