地址:深圳市南山区
面积:135平方
空间设计:唐彬、林俊
软装设计:黄金玉
设计材料:乳胶漆/烤漆/胡桃木/不锈钢.......
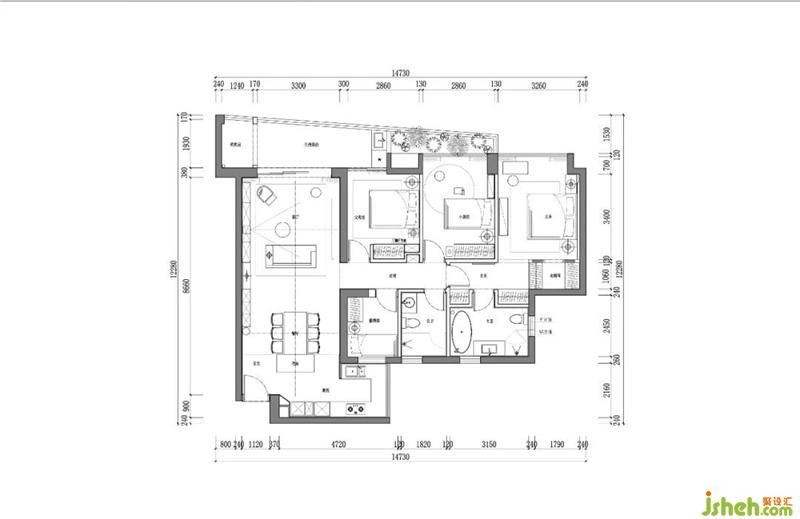
户型结构
产证面积137平方米,原房型是3+1房2厅2卫。中间的两堵承重墙已经确定了客厅+餐厅大小以及走道位置,能够调整的主要是客厅餐厅厨房的布局,以及房间与卫生间的安排。
我们对于平面布局调整的主要诉求是:
(1)有足够的收纳空间,尤其是书柜、鞋柜和主卧的衣柜;唐工对于客户需求的调查问卷是很详细的,细到有多少双鞋子,多少衣服;
(2)主卫要宽敞舒适;
(3)老人偶尔会来住,客房要兼具书房的功能。
原始结构图
平面图的调整主要包括:
(1)厨房由原来封闭式变为开放式,并用岛台连接厨房和餐厅,岛台同时还兼职了一点点入户鞋柜的作用;
(2)把主卧原来的衣帽间/衣柜和主卫打通,形成更宽敞的卫生间,能容纳下浴缸和淋浴房;同时把衣柜移到走廊节省出原来走道的面积,深圳装修设计并设计了一个迷你衣帽间,满足了我们大量的储藏需求;
(3)把原来的储藏室略扩大一点,变为保姆房。
平面布置图
玄关
地面和天花材质的变化、嵌入墙面的穿衣镜、岛台侧面的小鞋柜以及地台延伸出来的换鞋凳,配合灯光,一起组成了简单,但功能完整的玄关。地面瓷砖的拼贴,及天花石膏板的分割都是唐工精心设计的,并且上下呼应,充满了小细节。强弱电箱和镜子一并嵌入墙板中,完美隐藏。
客餐厅
6米多的雪花白岩板地台贯穿了整个客餐厅,收纳量巨大的鞋柜和书柜落于上方,同时也是换鞋凳和装饰台,兼具了美貌和实用。沙发转了90度,分割了客厅和餐厅,也颠覆了传统客厅的模式,去电视化的客厅成了全家交流的空间。
材质上,我们都喜欢温暖的木材,尤其是黑胡桃木的花纹在空间里反复出现——柜子、餐桌椅、单人沙发。深圳装修设计地板和厨房柜子用了浅一点的木色,形成丰富的层次。其它颜色则都是中性色:白色的雪花白岩板和餐厅吊灯,灰色的墙面和沙发,以及黑色局部,共同构成了客餐厅简洁、温暖、低调的风格。这种风格也延续到整套房屋。
家里没有看电视的习惯,于是放弃电视,安装了投影仪。屏幕收起来时,客厅就是一个聊天或看书的场所。考虑到家中有小朋友跑来跑去,没有购置大的茶几,取而代之的是沙发和躺椅边各放了一个小边几,方便放上一杯茶或者一本书。
多人沙发:BoConcept北欧风情
经典的Eames躺椅成了全家最爱的角落,人体工学的精准设计带来舒适的坐感。窝在里面看本书或者看部电影,都十分惬意。书架下面两层放了小朋友的书,他喜欢自己在书架上找书看;上面四层则放了大人的书,最上层还收纳了投影仪和小型音响。
边几:Cattelan
沙发躺椅:Herman Miller
鞋柜和书柜中间的墙面放弃了原来设计的石材,而是改用了质朴的仿水泥漆,是整个空间的留白之处,在一堆木饰面中留了一个气孔。挂上象征全家福的版画,成了最上镜的拍照背景。
我和先生迟迟不能在画上达成一致,于是先用一幅大型海报装饰空间。海报是Vitra设计博物馆收藏的100把经典椅子,其中也包括了客厅里摆的这把Eames躺椅。
黑胡桃木的餐桌倚岛台而放。岛台既是分隔,也是连接,模糊了餐厅和厨房的界线。三盏云朵吊灯低垂在餐桌上,营造了很温馨的就餐氛围。晚上,这里有时也是我和先生工作的地方,甚至比书房更受欢迎。
餐厅灯:Muuto
餐桌椅:BoConcept北欧风情
厨房
厨房本身面积并不大,但巧妙的布局和动线安排让这个厨房麻雀虽小、五脏俱全。
与客厅相对的部分是“西厨”,三个立柜里嵌入了两组冰箱、蒸烤箱和微波炉。深圳装修设计岛台充当了工作台、无论是做面包、包饺子、做西餐,还是冲咖啡插花,都得心应手。岛台一侧预留了电源,火锅、厨师机、咖啡机使用起来也都很方便。
中厨部分强劲的油烟机和电磁灶尽量降低了开放式厨房油烟的排放。对面是水池和洗碗机,厨房日常的洗菜、炒菜、洗碗活动都可以在转身间完成,十分方便。
主卧
先生本身不喜欢特别大的主卧,隔出一间小衣帽间,既增加了收纳空间,也在主卧进门处形成一个类似影壁的作用,避免别人站在卧室门口时一眼看到里面。
选了同色系的一方一圆两个床头柜,但吊灯和阅读灯又是相同的,对称中增加了一些变化。
床:锐驰
床头柜:HC28
吊灯:Tradition
床头的灯光是经过精心设计的。向下的吊灯光照范围较小,适合卧室的氛围;另外参考酒店的配置,增加了一组阅读灯,光线十分聚焦,亮度又足够,满足晚间阅读的需求,但又不会影响伴侣。
