欢迎光临聚设汇,装修找设计就上聚设汇!
   咨询电话:15602987227
登录    注册
聚设汇
首页 > 家装 > 理想家:“室室”如意,步步惊喜

理想家:“室室”如意,步步惊喜

地址:深圳市福田

面积:75平方

空间设计:杨鲲

软装设计:黄金玉

设计材料:乳胶漆/木饰面···

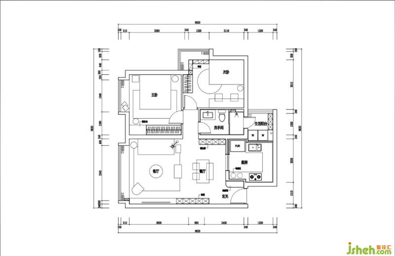
PLAN

原始户型分析:

1. 采光稍暗,厨房操作台较少

2. 公卫采光差,无法做到干湿分离,洗衣机放置在厨房外的生活阳台,无隔离油烟多

3. 次卧较小,无法满足屋主收纳+书桌的需求

4. 主卧开门见衣柜阳角,体验感受较差

方案优化后的平面布置图

1、更改生活阳台动线,由公卫进入,做了整扇的艺术玻璃门深圳装修设计,增加公卫采光,调整过道及公卫尺寸,使得公卫做到干湿分离

2、厨房墙体借用餐厅部分空间,台面改为U形台面,增加操作空间的同时使厨房扩大

3、原客餐厅比例比较狭长,过于浪费空间,与厨房尺寸调节后比例更加和谐

4、调整两个卧室的墙体,让次卧拥有收纳+书桌的功能

5、主卧房门移位,床尾做到一整面收纳衣柜,空间不减的同时收纳加大

Entrance

玄关全身镜与洞洞板的结合,让包包、钥匙及帽子等物品有了专门放置的区域。出门或回家随手拿取十分便利。

进门右边安排了一个“漂浮”的到顶鞋柜,连接换鞋凳,储物功能强大,下方放置常穿的鞋子,随换随走~

餐厅看向玄关

心情糟糕的时候一束小雏菊就能达到治愈的效果

Diningroom

餐桌居中放置,让四周形成环状动线,活动方便。简洁线条感的餐桌椅显得轻盈,也方便卫生的清洁。

根据屋主的需求,设置了餐边柜,白色的柜体与墙面融为一体,视觉上干净整体,做了部分开放处理,预留了插座放置饮水机,让生活更加便捷。

餐厅望向客厅

窗帘拉开,采光立马能穿透整个客餐厅,大面积的浅色系+小面积的深色点缀,达到一个美的平衡点。餐桌上的一束小花、一盆沁甜怡人的水果,将自己热忱的一面积极展示给生活~

随手用手机拍摄的照片打印出来也是温馨满满,夜晚来临,点上一支香薰蜡烛,氛围感马上就被渲染起来。

餐厅望向客厅及主卧区域

弧形的过道拱门上方设计了隐藏式的挂机,L型的风口百叶与天花形成整体,更加简洁美观。拱门内侧用红柄色区别白色的墙面,更显精致。

Living Room

客厅看向餐厅、厨房

客厅天花做了弧形处理,与过道处门洞相呼应。放眼过去,空间没有被隔断,视觉上开阔明亮,厨房与餐厅的动线更是便利了一日三餐。

老鹰空间设计

设计收费:面议 元/平             

擅长类型: 住宅

在线咨询

扫描二维码关注我们的微信

深圳市聚设汇文化传媒有限公司
主编热线:15602987227
总部:深圳市罗湖区梨园路128号宝能汽车大楼416单元
佛山、东莞、成都、重庆、福州、厦门、南昌、武汉、
杭州、苏州、温州、郑州、长春、沈阳、贵阳、柳州、
哈尔滨、九江等城市设立办事处
© 2017-2021 Jsheh.com 版权所有 粤ICP备17079093号
展开
回到顶部