欢迎光临聚设汇,装修找设计就上聚设汇!
   咨询电话:15602987227
登录    注册
聚设汇
首页 > 家装 > 70㎡两居功能宅 | 治愈系原木日式风

70㎡两居功能宅 | 治愈系原木日式风

地址:深圳市宝安区

面积:70平方

设计机构:老鹰空间设计

空间设计:杨鲲

软装设计:黄金玉

设计材料:乳胶漆/木饰面···

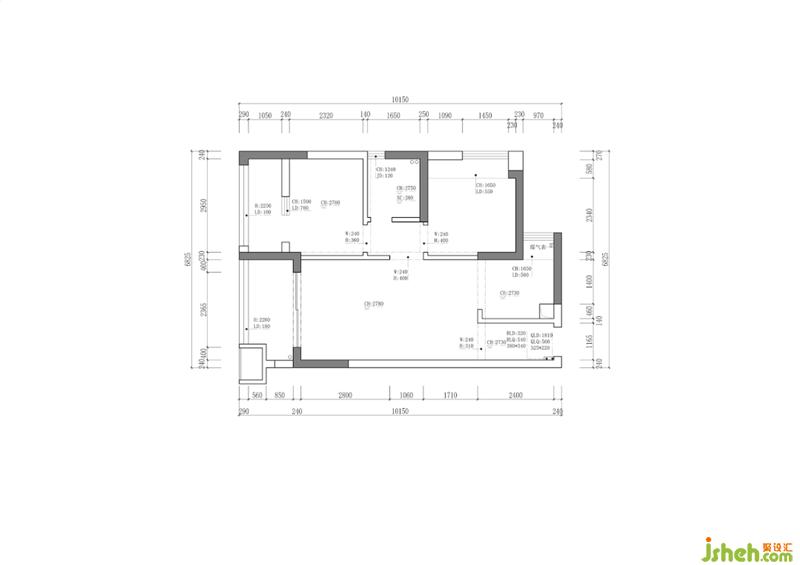
PLAN

1. 入户玄关和厨房有开窗处理,增加双向空间的互动性,也让视觉感受扩大化。

2. 客餐厅空间和卧室卫生间功能空间重新划分,适当压缩了客餐厅空间,为卧室卫生间的空间得到了扩大,深圳装修设计并且在两个空间中间预留了收纳柜和电视柜的位置,动线也重新分配,变得简单而且直接,利用了以前的走廊面积。

3. 阳台外扩让原本的阳台空间更加功能化,多出了一个工作区的区域

4. 整体空间的尺度放松,榻榻米的房间为客人留宿提供了场地,工作区和书房的的双书桌的设计也为未来小孩房提供了可能性。

5. 入户玄关的屏风为大门对沙发提供了一定的隐私安全感受。

6. 餐厅的圆桌提供了环状动线,让动线变得比较灵活,空间感也舒适。

Entrance

玄关的双边鞋柜和中间的换鞋区做了对称的设计,换鞋凳下方留有扫地机器人的位置,上方的窗户和厨房互通,增加了趣味性,也开阔了空间。

玄关处的穿衣镜正好映射厨房的开窗处,两个空间的互动性增强。

Diningroom

餐厅是玄关和客厅的纽带,圆桌居中的放置让动线变的简单,整体的木质框的元素从玄关一致延伸到客厅,让空间整体自然.

餐厅也是厨房卫生间和书房的“交通要道”,环状的动线为每一个空间都提供了可以进入的动线,让以前原本为了预留这些空间的过道,得到了充分的缓解和利用。

玄关望向餐厅,整个空间通透明亮,采光极佳。日式风格中白色与木色的使用都能起到很好的提亮效果,温馨却不压抑。

闲时叫上三两好友在家开个火锅趴,或一起深夜追个球赛,生活就该被所爱的人与事物填满~

景深细节图

Living Room

玄关的小屏风和沙发的小边几结合,解构之后的重组即规避了大门对客厅的尴尬,为沙发和玄关提供了功能性及隐私性,组合起来也十分有趣。

客厅的元素延伸的玄关和餐厅,木质的家私的感觉,让空间更加纯粹自然。

电视背景是由两个隐藏门+电视柜来组合而成的,用了一些现代颜色撞色的手法,让空间在色系不变的情况下更为整体深圳装修设计,卫生间的隐藏门也是木饰面+喷漆的工艺,让电视墙在视觉上得到延伸,再结合书房和厨房日式门的元素,显得整体自然。

隐形门打开视角

餐厅望向客厅及阳台区域

老鹰空间设计

设计收费:面议 元/平             

擅长类型: 住宅

在线咨询

扫描二维码关注我们的微信

深圳市聚设汇文化传媒有限公司
主编热线:15602987227
总部:深圳市罗湖区梨园路128号宝能汽车大楼416单元
佛山、东莞、成都、重庆、福州、厦门、南昌、武汉、
杭州、苏州、温州、郑州、长春、沈阳、贵阳、柳州、
哈尔滨、九江等城市设立办事处
© 2017-2021 Jsheh.com 版权所有 粤ICP备17079093号
展开
回到顶部