项目名称 / 「黑方」
项目地址 / 南京·金地自在城
设计团队 / 澜本设计事务所
施工团队 / 云古建筑装饰
软装搭配 / 予美风尚家居
摄影团队 / 梵榭摄影
户型结构 / 两室两厅
设计风格 / 极简
建筑面积 / 120㎡
项目类型 / 私宅
施工造价 / 9.6万
全屋耗资 / 30万
“ 消减色彩的错纵交织,黑白将空间切割,
宛如《教父》里深邃经典的黑方威士忌,
品一口,便让人沉醉其中。”
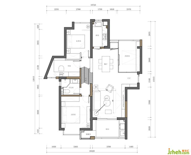
户型结构 | STRUCTURAL DRAWING
原始图
平面图
契子 | BEGINNING
业主是一名独居的酷男孩,喜欢赛车,出身军人世家。
根据其提出的色彩偏好,设计师在设计之初就抛弃了多余装饰,
利用简洁的黑白作为主色调。
少了色彩的干扰,使用者在感受空间沉稳分量感之余,
也将更贴近生活的本真。
△去除多余色彩的干扰,给生活更多情调与留白。
空间,创新 | INNOVATION IN DESIGN
简洁大气的设计,往往需要设计团队投入更多,
聚焦在空间体验感,材质搭配,以及细节打磨上。
设计师巧妙的借由透明隔断,南京装修设计在餐厅旁切割出一个多功能空间,
将原两室升级为小三室的布局。
黑色细框搭配无视线遮挡的超白玻璃,
使得内外空间相互延续贯通,
满足功能的同时,也延展了整个空间的体验尺度感。
精心设计的多功能房,是为居住者定制的一个惊喜角落。
设计团队沿墙布置了两排落地柜,洁白的柜门阖上时,
视觉上连贯的整片表现出气势张力,
让人的空间感受上更宽裕舒适。
柜门打开,放下隐形床后,多功能房便瞬间转变为一间温馨次卧。

除此之外,多功能房还涵盖了一个洗衣房与置物间。
不使用时,洗衣机,洗水槽等完全隐藏至柜中。
打开左右的活动门,便可方便的使用。
为居住者节省出了更多可以使用的边角空间。


△被整合的北阳台的原有功能,洗衣房,也被巧妙的隐藏起来。
生活,开放 | LIVING SPACE, OPEN
生活是反复播放日常串联起的记忆长卷。
设计师将主要的生活交流空间,客厅与餐厅串联,
设计为开放式的布局,
打造出让人一目了然的流动空间。

同时,又通过简单的线条与凹凸有致的设计,在黑白基底空间里,南京装修设计切割出一块块精细的有机体块,
用以挑逗视觉感觉,增加生动与趣味性。