项目名称 / 「暮屿」Sunset island
项目地址 / 南京·马家街小区
设计团队 / 澜本设计事务所
施工团队 / 云古建筑装饰
摄影团队 / 梵榭摄影
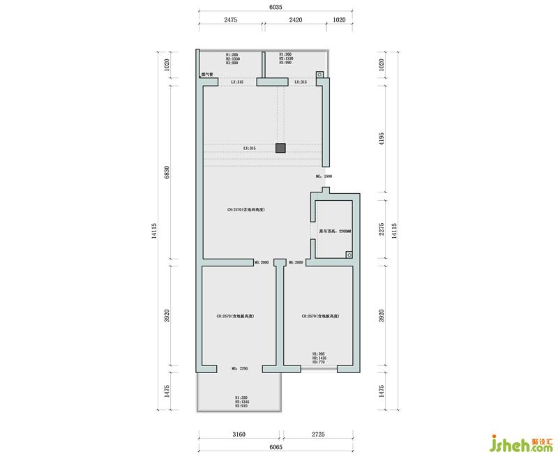
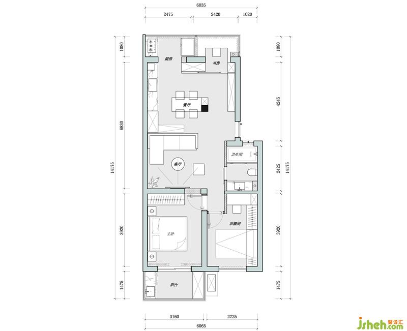
户型结构 / 二室一厅
设计风格 / 北欧
建筑面积 / 80㎡
项目类型 / 私宅
施工造价 / 6万
全屋耗资 / 18万
“认真对待生活的每一天,就像在白开水中加入的糖,
融化后虽看不见了,但喝到的时候,会觉得真好,日子还是甜的”
面对80㎡的老房改造,设计师打破了传统大拆大改的做法,巧妙借用原屋中的“缺点”,将其转变为兼顾实际功能性与趣味艺术性的空间。南京装修设计色彩丰富却不杂乱的色调搭配,高效合理的空间改造利用,让小小的居所也能包容生活中所有的酸甜苦辣。
极致的空间利用 | EXTREME SPACE UTILIZATION
为理想的实现而生活,才会生趣盎然。在兼顾了基本生活空间需求后,澜本在极致的空间利用中,打造出了独属男主人的电竞室;带隐形床装置的多功能次卧;餐厨客厅一体化解放的活动空间;以及无处不在巧妙的收纳空间。真正做到了麻雀虽小五脏俱全。

餐厨客厅一体化设计 | INTEGRATED DESIGN OF DINNING ROOM, KITCHEN AND LIVING ROOM
狭小的空间会让人觉得拥挤,最佳的解决方法就是让室内的视线通透起来,解放空间的“体量感”。设计师将主要的生活交流空间,南京装修设计客厅与餐厨串联,设计为开放式的布局,营造出 “大”宅的生活体验感。
▲ 为了扩大空间使用感,在设计之初就抛弃了多余装饰的做法。
同时,又根据不同区域功能,引入色彩变化,用以挑逗视觉感觉,增加生动与趣味性。简洁的大色块设计,也传达出居住者时尚干练的个性与态度。
▲餐厨客厅,全景视角
▲客厅电视墙细节,仅以色彩区分不同功能区域。
无论在厨房还是餐厅或是其他公共区域,早晨就开始和阳光作伴,开放性的厨房和餐厅,给予家人更多精神上和言语上的交流。
▲利用承重柱就地取材,以其为中心打造了一个小型餐厅,温馨感十足
▲厨房橱柜的蓝色与客厅相呼应,形成色彩丰富却不杂乱的统一
▲从餐厅看向客厅,全景视角
巧妙的收纳 | SMART STORAGE DESIGN
让“小”宅看着“小”用着却“五脏俱全”, “折叠家具”“储物收纳”等关键词也成为了设计的主要点。

▲屋内的每一面墙,设计师都没有放过,将其设计为储物柜。白色柜面将其体量感弱化,木色横断在增加摆放展示空间的同时南京装修设计,打破了柜子的拥堵感,使其在视线上更加灵巧。

▲不常用的次卧内,布置了折叠书桌与隐形床。为居住者节省出了更多可以使用的边角空间。
生活的惊喜,电竞室 | SURPRISE, ESPORT ROOM
设计师将看似无用的边角空间,为男主人打造了一间沉浸式电竞室。个人爱好上互不打扰,生活中互动性十足。