欢迎光临聚设汇,装修找设计就上聚设汇!
   咨询电话:15602987227
登录    注册
聚设汇
首页 > 家装 > 北京鑫兆雅园装修:60㎡拆掉一面墙,LDKB流动布局让宽敞实用双收

北京鑫兆雅园装修:60㎡拆掉一面墙,LDKB流动布局让宽敞实用双收

坐标丨Position:北京鑫兆雅园装修

设计团队丨Design Team:久栖设计

面积丨Area:60㎡

造价丨Cost:30万

风格丨Style:原木

//

看倦了

传统的一板一眼

高阶的布局 玩法

真是被他家

给 摸透了

本案例是位于宋家庄附近,套内面积46㎡。原始户型是一套常规的一居室公寓,准备作为他们的婚房使用。

第一次见面时,屋主提出了他对于未来居住的空间的要求。希望自己在经过一天的繁忙的工作后,回到家里能够有一个舒适的温馨的体验。

1:客厅需要足够的观影距离,以保证一定的舒适度。

2:需要有一处临时待客的空间。

3:拥有舒适,且操作方便的厨房空间。

4:希望有衣帽间做储物。

//

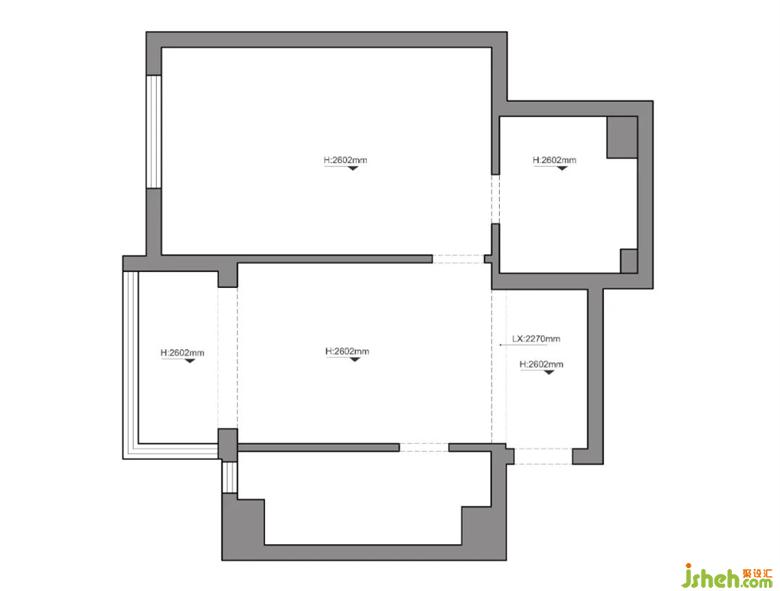
原始户型

经过实际测量,我们对于房屋做了以下分析

优点:

1:全朝南户型采光充足。

2:除主体承重墙外,都是轻体墙房屋,改造可能性大。

缺点:

1:卫生间没有做好规划,空间利用率不合理。

2:装修整体空间储藏量太少。

3:卧室没有得到很好利用,空间浪费严重。

4:卫生间在卧室内使用起来不方便。

//

平面方案

玄关:不仅拥有进门换鞋帽的功能,还兼具展示和清洁物品的收纳。

卫生间:做了干湿分区,防止淋浴间水渍外溅。

厨房:半开放式布局,扩大视觉感官的情况下,并延伸了客厅的空间感。

客厅:把卧室与客厅之间的隔断进行调整,加大客厅的视距,提升装修观影感受。

卧室:装修利用其长度增加了衣帽间,大大的增加了其储物功能。

//

客厅

客厅大视角:沙发背景墙后移,拉长沙发与电视之间的距离,扩大活动空间。

拆除厨房与客厅之间的墙体改为装修半高墙体,与客厅、餐厅、阳台形成LDKB一体化设计。

阳台把地面抬高100mm做地台,有客人的时候可以铺上地垫做为临时待客区。顶面做了无主灯设计,不让灯具抢了整体空间的焦点。

左侧是入户鞋柜,方便屋主进屋后更换鞋子和摆放钥匙。在厨房入口的外侧,安排了折叠餐桌,可以完成两种情景装修模式:

只有屋主两人世界的时候,折叠起来的小方桌够用不占地。

朋友来家聚会的时候,可以把餐桌打开,满足多人就餐使用。

厨房与客厅之间的吊顶,以矮墙为交界,保证了客厅的方正。

枣红色的布艺沙发,提升了整体空间色彩感。以实木为主体,藤编与玻璃为装饰的茶几,把自然与现代的感受融合的淋漓尽致。电视柜上的原木和玻璃元素与茶装修几相呼应,让空间更整体统一。

门厅柜体从右往左分别是斜插式鞋柜、换鞋凳、以及清洁用装修具柜。方便屋主在这里更换衣物,拿取清洁用具。

厨房与客厅之间的格局打开后,电视背景墙采用了木地板上墙的拼接方式,让墙面与地面形成一个整体。

北京久栖室内设计有限责任公司

设计收费:100~400 元/平             

擅长类型: 家居设计

在线咨询

扫描二维码关注我们的微信

深圳市聚设汇文化传媒有限公司
主编热线:15602987227
总部:深圳市罗湖区梨园路128号宝能汽车大楼416单元
佛山、东莞、成都、重庆、福州、厦门、南昌、武汉、
杭州、苏州、温州、郑州、长春、沈阳、贵阳、柳州、
哈尔滨、九江等城市设立办事处
© 2017-2021 Jsheh.com 版权所有 粤ICP备17079093号
展开
回到顶部