户型信息丨About Room
坐标丨Position:北京首开常青藤
设计团队丨Design Team:久栖设计
面积丨Area:100㎡
造价丨Cost:40万
风格丨Style:美式轻奢
关于设计丨About Design
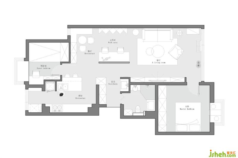
这是一套100㎡的三居户型,为了提高居住的舒适,保证宽敞的环境,根据屋主需求改造成两居。北京装修设计刚开始的时候,女主人才发现自己怀孕,父母过来住的情况也较少,两居完全可以满足一家三口的的居住需求。
原始户型的墙体结构并不是都为承重墙,这为设计师的改造思路提供了更多的可能性。空间整体的采光性很好,但是卫生间是个暗卫,需要引入光线或是采用灯光照明。
北京装修设计拆除了一间卧室改造成餐厅,三居改两居,为了保证最大化舒适度,毫不束缚。客、餐、工作区无缝连接在一起,让空间整体更具通透性。
1.客、餐、办公,三位一体的公共区域无隔断,形成流畅的洄游动线。功能区之间过度自然,丝毫不会破坏整体的空间感。
2.除了一面墙改造成半开放式厨房,岛台的布局提升了厨房的操作空间,还提供了一个吧台的功能。
3.卫生间换成可折叠的玻璃门,提升内部的采光性。并将洗手台进行了外移,实现干湿分离。
4.牺牲一间卧室改造出来的工作区,完全开放,长虹玻璃完美的隔绝了室外的视线,起到一定的屏障作用。

轻奢风格是以简洁为主的空间装饰,客厅融入高级灰的质感和个性化的元素,让即使简洁的设计,也有着极为高级的视觉效果,营造出格调高雅家居环境
电视墙是组合柜的形式,灰色开放格搭配白色储物柜,彰显十足的复古风味。柜门表面还做造型提升整体的层次感,底部在配上灰色石材石基,增添一丝别样的韵味。
客、餐、办公,三位一体的开放活动空间,没有任何的隔断过度自然。长虹玻璃+窄边框所组成的屏风,让空间形成流畅的洄游动线。

客厅整体采用了轻奢风格进行装饰,它保留简约的风格干净整洁。北京装修设计却又有很多个性化的元素,来增加空间奢华的味道和质感。
客厅顶部选择了一款黄铜质感的魔豆灯,金属拉丝的质感,让客厅看似简洁朴素的外表之下,迸发出一种独有的贵族气质。
长虹玻璃+内嵌柜组合而成的屏风隔断,完美的阻挡了门外的视线,避免一览无余。长虹玻璃独特波浪形纹理,又可以很好的营造一种朦胧的美感。