欢迎光临聚设汇,装修找设计就上聚设汇!
   咨询电话:15602987227
登录    注册
聚设汇
首页 > 家装 > 家有两娃,拥有超强收纳的75㎡治愈系空间

家有两娃,拥有超强收纳的75㎡治愈系空间

户型信息丨About Room

坐标丨Position:北京乔庄北街

设计团队丨Design Team:久栖设计

面积丨Area:75㎡

造价丨Cost:30万

风格丨Style:日式

关于设计丨About Design

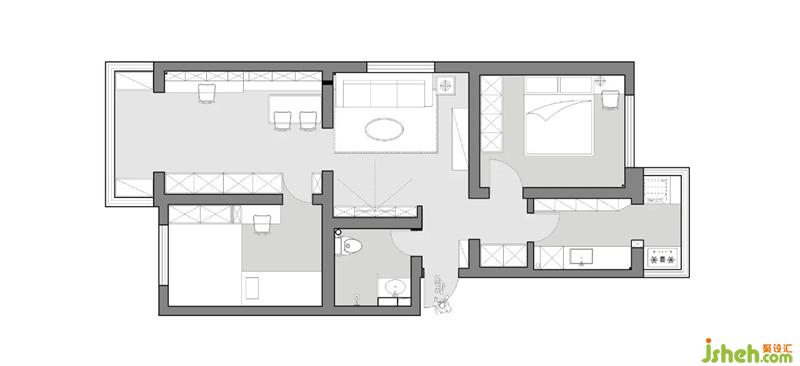
项目在通州,屋主改造这套房之前,曾经换过两套小房子,而这次是终极版改造。屋主两个人平时上班都比较忙,原客厅想改造成书房,原餐厅想改造成客厅。采光好的主卧留给两个孩子,希望有一个大一些的睡眠空间,一家四口都可以居住,希望有尽可能多的储物空间。

原户型比较方正,户型的整体结构基本是承重墙结构,墙体可改造的地方不多,每个房子采光都还不错。玄关部分的墙体不是很完整,入户的储物空间有限。

1.卫生间增加了玻璃隔断,做了干湿分离。

2.玄关区域进门增加了成品鞋柜,旁边增加了挂衣的柜体。

3.厨房冰箱外置,将灶台挪到阳台改用集成灶,扩大厨房内部的储物空间。

4.书房增加了办公桌,书柜储物,利用书房一整面墙的空间做储物,储物柜跟主卧隐形门结合,墙面看起来更完整。

客厅没有过多的装饰,木地板搭配墙面的马卡龙色,清新自然。沙发旁边的柜体里边是暖气分水阀,留了敞开的格子供沙发这边使用。浅灰色的沙发不仅有颜值,坐感也很舒适。

柜体细节图,原木色的板材和浅灰色布艺的沙发两种材质的综合。配比恰如其分,毫无违和感。

客厅区域有一个朝西的窗户,下午西晒比较严重,配了不占空间且能过滤阳光的百叶帘。白色的百叶帘与垭口颜色统一,门洞圆弧的处理,让整个空间变得更加温和、流畅。

电视柜结合储物空间来做,全白色未免有些单调乏味,加入原木色套格,丰富立面效果的同时,避免视觉疲劳。

客厅一角,每一件单品都是精挑细选定下来的。藤编储物柜做工的精致,与客厅简约的整体风格对比强烈。

玄关灰蓝色的挂衣空间搭配黄铜拉手更显精致,冰箱外置,内嵌一侧。

吊柜书柜做了部分敞开格,可以有选择性的展示一些常用的书籍。带柜门的可以将不常用的杂物收纳起来,让空间看起来正整洁。

敞开式书房空间集合了多种功能,该区域采光通风都很好,更适合孩子在这个空间活动玩耍,学习。

桌面距离吊柜底部600mm的空间,使用者可以轻松的拿取所需要的书籍。藤编椅材质跟书桌材质,整体统一在一个色系。

餐厅一侧选择了卡座的形式,下边结合储物来做。餐桌选择了可以抽拉的餐桌,平时1200mm,亲戚朋友来了,多人就餐可以切换成1400mm。

阳台选用了纱帘与遮阳帘一体,中午强烈的阳光透过纱帘以后,光线变得柔和。无论是工作学习还是用餐休闲,都会进一步提高使用感受。

北京久栖室内设计有限责任公司

设计收费:100~400 元/平             

擅长类型: 家居设计

在线咨询

扫描二维码关注我们的微信

深圳市聚设汇文化传媒有限公司
主编热线:15602987227
总部:深圳市罗湖区梨园路128号宝能汽车大楼416单元
佛山、东莞、成都、重庆、福州、厦门、南昌、武汉、
杭州、苏州、温州、郑州、长春、沈阳、贵阳、柳州、
哈尔滨、九江等城市设立办事处
© 2017-2021 Jsheh.com 版权所有 粤ICP备17079093号
展开
回到顶部