户型信息丨About Room
坐标丨Position:北京龙腾苑
设计团队丨Design Team:久栖设计
面积丨Area:90㎡
造价丨Cost:25万
风格丨Style:北欧
关于设计丨About Design
项目位于昌平区,小区环境比较安静,重要是房子在一层而且附带一个小院,业主平时喜欢一些暖色系的元素。这样在设计上也就造就了一个暖暖的家,好似三月的暖阳照在身上,暖的让人很舒服。
平时自己一人住,家里会养狗,主要需求是增加屋里的收纳。同时各个空间的收纳也要细化到什么空间,放置什么物品。这样就会要求在设计过程中细节上要把控得当,物品多大,需要多大的空间等等。都需求仔细去规划,除了收纳上在电子设备上也有个性化的需求,类如投影,音响,NAS,激光电视等等。
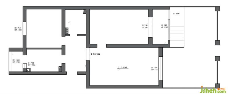
原户型格局比较固定,一些地方也不可以做大的更改。所以设计重点就放在了各个空间的收纳,和动线的规划上,充分利用好每一个空间。
1.家居装修首先解决的是入户小厅的问题。因为户型格局的原因,所以在入户后产生了一个小厅,也是去每一个的空间的一个中转站。设计时就把鞋帽柜和卫生间手盆区域,都移到这个厅里,合理划分了原来浪费的空间,同样形成了一个玄关区域。
2.卫生间干湿分离的同时增加了浴缸。
3.主卧在不影响动线的情况增加了衣帽间。
4.洗衣机放在了原来没有下水的阳台,通过改造下水管的形式完美解决。
原木和亚麻的搭配是一个经典,氛围感十足。同时转角沙发的利用也让客厅的活动空间变得更大,方便在客厅做一些运动和锻炼。
姜黄色的点缀,让原本比较温馨平淡的空间,多了几分跳脱和活跃。
很喜欢这个角度,给人一种深深的暖意,而且是从内心深处发出的。这就是空间氛围营造的妙处。
这里要重点说一下电子设备。因为有投影,音响和NAS,所以需要提前预埋很多的线。增加时一定要提前考虑到,在施工走线阶段做好预埋,后期是没法增加的。
卡座一直是小户型的不二之选,空间利用绝对高,还能增加储物和收纳。餐桌边上设计了餐边柜,平时的一些小电器方便使用,红酒还有收藏的一些杯子也有空间展示。
简洁自然,给人的感觉就会是舒服干净,没有丝毫违和感。
