项目地址 :兰亭盛荟
项目面积 :107平方米
项目风格:现代轻奢风格
设计机构:H&Y联创设计机构
预 算:27万
前言:
原本户型比较方正,格局上没有什么问题,基本不用改造,对于生活有高要求、高品质的一对年轻业主来说,白花花的墙,没有任何色彩和颜值完全就爱不上这个家!土黄色的砖、红木的地板更是让人接受不了。业主喜欢的是现代轻奢风格,喜欢时尚和金属元素,喜欢流行有质感的色彩...于是让室内设计师给她一个色彩斑斓的家!
原始图
经过室内设计师改造,质感兼具颜值的现代轻奢风形成了。整个空间采用灰色调为主体,用亮色作为突出的色彩,大理石金属元素成了轻奢高级的代表。
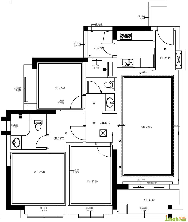
平面图
客厅
客厅整体用浅灰色调,单人沙发爱马仕橙色成了整个客厅的点亮之笔,挂画与之呼应,颜色鲜明而独特。





餐厅
餐厅大理石餐桌极具高级感,时尚墨绿色餐椅搭配金属元素,墨绿色餐边柜透露轻奢气息,亦有些许复古。
