项目地址:华润天合
项目面积:60平方米
项目风格:美式北欧混搭风
设计机构:H&Y联创设计机构
预 算:20万
本案是一套精装房,位于广州华润天合,建筑面积80多平方的小三房,第一次见面还是在疫情严重的期间,设计师与业主相互冒着生命的危险见了面,并且立即签定了软装设计合同,装修设计风格确定后,业主后期又签定了产品托管服务。 女主和男主是一对90后的小夫妻,平时工作忙,基本每天晚上都在加班,所以特别珍惜周末的休息时光。 她说:我不想把自己的时间耗在自己并不专业的事情上,比如逛市场,比材料,收货验货及安装配合;她说:专业的事情应该交给专业的人来做,于是从设计到局部的施工到最后的产品托管全部交付给我们;于是五一国家休息日时,小夫妻二人去厦门旅游,岁月静好,而在她的家中,我们的设计师与产品部的同事热火朝天收货,验货及安装......
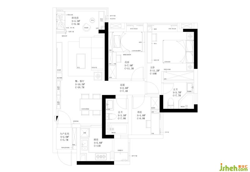
平面图
客厅
干练简洁的线条,没有过多的色彩。浅灰色的布艺沙发组合再加上奶灰色的墙面色让整个空间更加优雅。



白色的文化砖背景,樱桃木的电视柜组合又让空间注入明亮温馨。



餐厅
高质感的大理石餐桌,灰蓝色的餐椅再配上墙体的美式线条造型,让就餐环境休闲放松且有仪式感。


