欢迎光临聚设汇,装修找设计就上聚设汇!
   咨询电话:15602987227
登录    注册
聚设汇
首页 > 家装 > 爱莲说

爱莲说

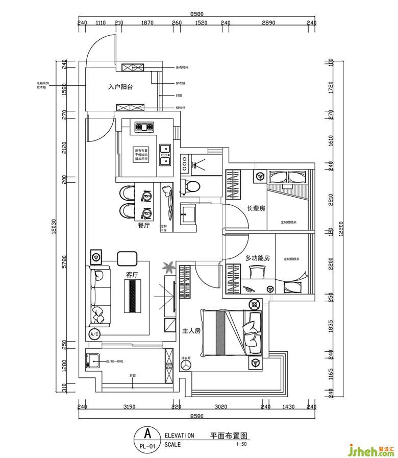
长辈房:房间原有面积不大,于是装修公司结合飘窗做了储物式榻榻米,这也是比较常见的一种处理方式,简单简洁,兼具美观和实用性。床品以浅色系棉麻材质为主,经济舒服。

多功能房:多功能房的布置类似于长辈房,装修公司利用飘窗做了储物式榻榻米,连接榻榻米延伸出来书桌。一室多用,闲暇之余,可做书房,看看书,打打游戏,熬夜加班累了也可倒头就躺。若有客人来了,也可在此落脚歇息。

广州市胡狸胭脂室内设计有限公司

设计收费:240-500 元/平             

擅长类型: 家装、豪宅、别墅

在线咨询

扫描二维码关注我们的微信

深圳市聚设汇文化传媒有限公司
主编热线:15602987227
总部:深圳市罗湖区梨园路128号宝能汽车大楼416单元
佛山、东莞、成都、重庆、福州、厦门、南昌、武汉、
杭州、苏州、温州、郑州、长春、沈阳、贵阳、柳州、
哈尔滨、九江等城市设立办事处
© 2017-2021 Jsheh.com 版权所有 粤ICP备17079093号
展开
回到顶部