欢迎光临聚设汇,装修找设计就上聚设汇!
   咨询电话:15602987227
登录    注册
聚设汇
首页 > 家装 > 欢乐颂

欢乐颂

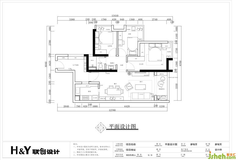
长辈房满足父母每年过来小住上一两个月的需求,追求简洁干净,墙面颜色以浅杏色为主,温馨宁静,搭配几何图案的床品使整个空间不单调,同时给人带来安稳的感觉。

装修公司

次卧的兔子床是主人给闺蜜精心挑选的,同时也满足自己的少女心。整个空间的色调也是以灰蓝色为主,清新淡雅。大大的L型飘窗是全屋风景最好采光最好的位置了,偶尔周末闺蜜过来蹭住,时而在飘窗上闲聊,时而兔子床上悄悄话,幸福而知足的生活也莫过于此了吧。

阳台一边是洗衣机和洗衣池,满足日常生活所需。

另一边做的是一个小卡座和书柜,聒噪的都市生活里,独享一片清净,在一个小角落,喝茶读书,不谈悲喜,倦时休憩,不争朝夕。阳光暖一点,再暖一点,日子慢一些,再慢一些。

装修公司

广州市胡狸胭脂室内设计有限公司

设计收费:240-500 元/平             

擅长类型: 家装、豪宅、别墅

在线咨询

扫描二维码关注我们的微信

深圳市聚设汇文化传媒有限公司
主编热线:15602987227
总部:深圳市罗湖区梨园路128号宝能汽车大楼416单元
佛山、东莞、成都、重庆、福州、厦门、南昌、武汉、
杭州、苏州、温州、郑州、长春、沈阳、贵阳、柳州、
哈尔滨、九江等城市设立办事处
© 2017-2021 Jsheh.com 版权所有 粤ICP备17079093号
展开
回到顶部