三层主人套房
Master bedroom suite
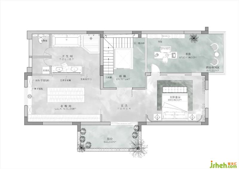
三层平面布置图
来到三层主人主要生活楼层,功能齐备的衣帽间让生活井然高效的美丽。

与卧室玄关区依然沿用对称简约线条构成屏风弱间隔。
如莲一样的女主人,知性雅致地绽放在岁月里。近弧形的吊顶线条沿用于此,营造静谧雅致的空间氛围。


重庆别墅设计利用露台设设置的阳光书房,春夏是一室葱茏掩映、秋冬是写意枝丫的静默。
生活的艺术在于一餐一饭、一花一茶,在于闲暇之时间,如同室中之空隙,光与影在时空里留下刻度。

质感而分区明确、功能齐备的主卫(晾晒小阳台、独立座厕、沐浴间、双盥洗台、卸下疲惫的浴缸区)让洗浴成为享受。

更多重庆别墅设计请关注